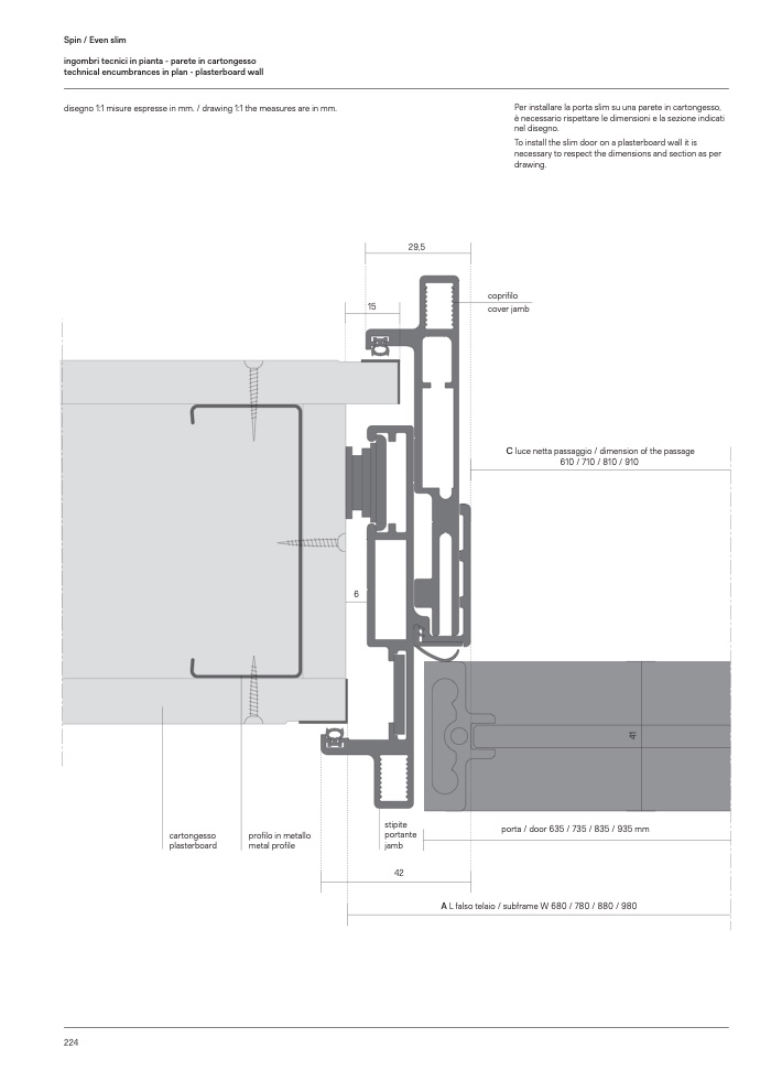
Spin / Even slim

ingombri tecnici in pianta - parete in cartongesso

technical encumbrances in plan - plasterboard wall

disegno 1:1 misure espresse in mm. / drawing 1:1 the measures are in mm.

Per installare la porta slim su una parete in cartongesso,

è necessario rispettare le dimensioni e la sezione indicati

nel disegno.

To install the slim door on a plasterboard wall it is

necessary to respect the dimensions and section as per

drawing.

coprifilo

cover jamb

C luce netta passaggio / dimension of the passage

610/710/810/910

29,5

15

6

224

cartongesso

plasterboard

profilo in metallo

metal profile

stipite

portante

jamb

42

porta/door635/735/835/935mm

ALfalsotelaio/subframeW680/780/880/980

4

1