73

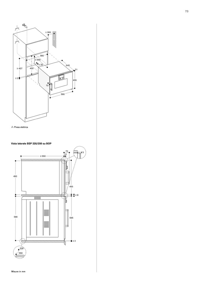
Presa elettrica

Vista laterale BSP 220/250 su BOP

Misure in mm