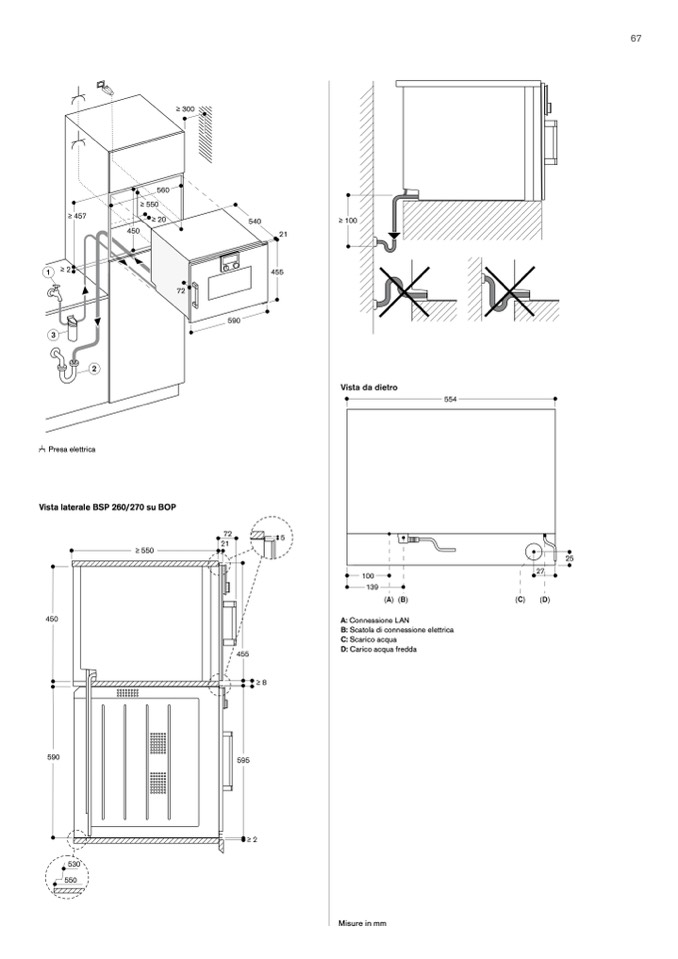
Presa elettrica

Vista laterale BSP 260/270 su BOP

A: Connessione LAN

B: Scatola di connessione elettrica

C: Scarico acqua

D: Carico acqua fredda

Misure in mm

67