271

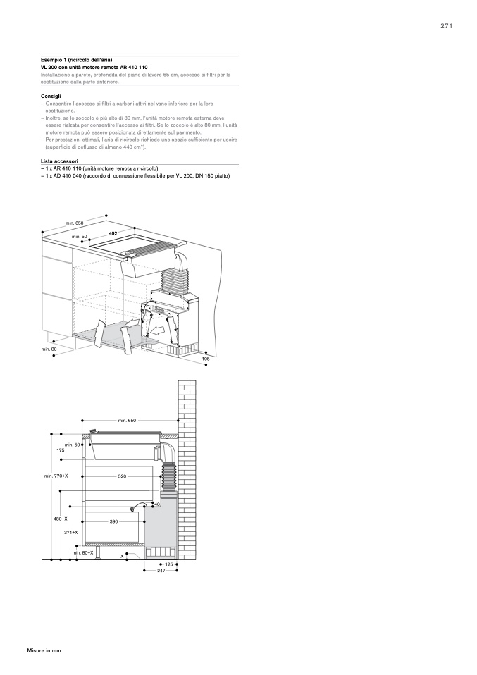
Esempio 1 (ricircolo dell’aria)

VL 200 con unità motore remota AR 410 110

Installazione a parete, profondità del piano di lavoro 65 cm, accesso ai filtri per la

sostituzione dalla parte anteriore.

Consigli

– Consentire l’accesso ai filtri a carboni attivi nel vano inferiore per la loro

sostituzione.

– Inoltre, se lo zoccolo è più alto di 80 mm, l’unità motore remota esterna deve

essere rialzata per consentire l’accesso ai filtri. Se lo zoccolo è alto 80 mm, l’unità

motore remota può essere posizionata direttamente sul pavimento.

– Per prestazioni ottimali, l’aria di ricircolo richiede uno spazio sufficiente per uscire

(superficie di deflusso di almeno 440 cm2).

Lista accessori

– 1 x AR 410 110 (unità motore remota a ricircolo)

– 1 x AD 410 040 (raccordo di connessione flessibile per VL 200, DN 150 piatto)

Misure in mm