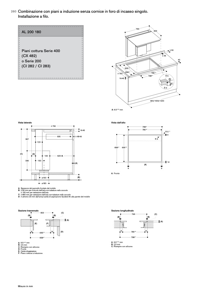
260

Combinazioneconpianiainduzionesenzacorniceinforodiincassosingolo.

Installazione a filo.

793

793

635

+2

635

+2

658

±1

658

±1

653

653

AL 200 180

Piani cottura Serie 400

(CX 482)

o Serie 200

(CI 282 / CI 283)

≥ 50

≥ 50

≥ 35

≥ 35

40

40

≥ 750

≥ 750

780

+2

7987

±1

80

+2

R 5

16-45

16-45

798

±1

R 5(A)

(A)

R3

R3

Vista laterale

367

(C)

336

Vista dall'alto

≥ 750

798

±1

780

+2

A: 6.5

+0.5

mm

A: 6.5

+0.5

mm

900/1000/1200

900/1000/1200

R 5

+1

9

Measurements in mm

Measurements in mm

16-45

≥ 48+A

(A)

B)

658

±1

A: Fronte

635

+2

R3

635

123

(D)

133

425+A

150

14

9

9

(A)

ø150

(

ø180

A: Spessore del pannello frontale del mobile

B: ≥ 60 mm per ricircolo dell’aria con tubature nello zoccolo

≥ 100 mm per estrazione dell’aria

C: ≥ 850 mm per estrazione dell’aria con tubature nello zoccolo

D: ≥ almeno 20 mm dall’area/cavità di aspirazione Guided Air alla parete del mobile

Sezione trasversale

653

(B)

(E)

A: 6.5

+0.5

mm

B: 2.5 mm

C: Riempire con silicone

D: Fronte

E: Centrodiaspirazione

F: Piano cottura a induzione

(C)

(B)

Sezione longitudinale

793

9

780

+2

798

±1

(C)

(B)

(B)

(A)

(A)

(F)

9

14

635

+2

658

±1

(D)

9

Misure in mm

A: 6.5

+0.5

mm

B: 2.5 mm

C: Riempire con silicone

90°

90°