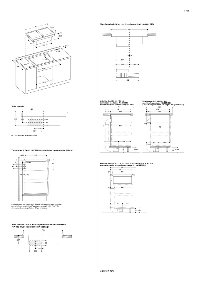
Vista frontale di CV 282 con ricircolo canalizzato (CA 082 020)

179

163

432

Vista frontale

Connessione diretta dal retro

Vista laterale di CV 492 / CV 282 con ricircolo non canalizzato (CA 082 010)

≥ 50

490

con ricircolo canalizzato (CA 082 020)

e connettore piatto standard con piega a 90°

Vista laterale di CV 492 / CV 282

Vista laterale di CV 492 / CV 282

con ricircolo canalizzato (CA 082 020)

e connettore piatto corto con piega a 90° (AD 857 033)

700

650

574

490

612

122

490

84

99

99

513

475

331

281

331

243

99

≥ 100

99 ≥ 100

171

80

227

Vista laterale di CV 492 / CV 282 con ricircolo canalizzato (CA 082 020)

e connettore piatto extra-corto con piega a 90° (AD 857 034)

600

547

57

490

99

10-80

50 (≥ 25)

448

Per installazioni che prevedono il ricircolo dell'aria verso pareti posteriori

non sufficientemente isolate (Trasmittanza termica U ≥ 0.5 W/m2°C)

si raccomanda una progettazione di tipo canalizzato.

Vista frontale - foto d’incasso per ricircolo non canalizzato

(CA 082 010) e installazione in appoggio

99 ≥ 100

331

216

Misure in mm