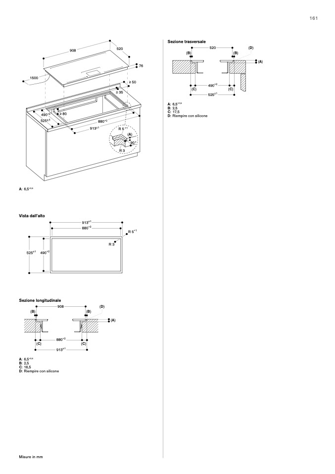
Sezione trasversale

161

908

520

76

≥ 50

≥ 35

R 5 +1

(A)

R3

520

490+2

525±1

(D)

(B)

(C)

(B)

(C)

(A)

1500

A: 6,5

+0,5

B: 2,5

490+2

≥ 80

525±1

C: 17,5

D: Riempire con silicone

880+2

913±1

A: 6,5

+0,5

measurements in mm

Vista dall’alto

525±1 490+2

Sezione longitudinale

913±1

880+2

R 5+1

R3

908

880+2

913±1

(D)

(B)

(C)

(B)

(C)

(A)

A: 6,5

+0,5

B: 2,5

C: 16,5

D: Riempire con silicone

Misure in mm

90°