> 35

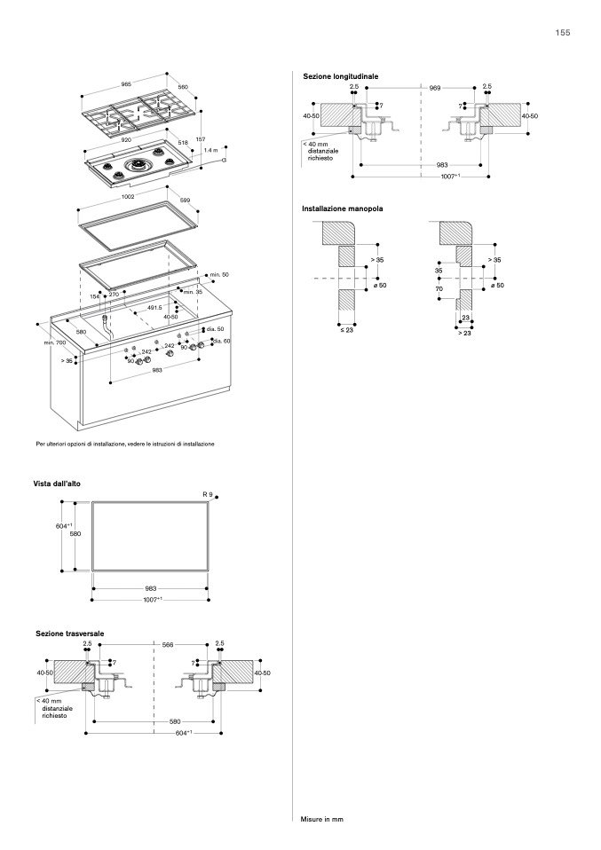
Per ulteriori opzioni di installazione, vedere le istruzioni di installazione

Vista dall’alto

Sezione trasversale

distanziale

richiesto

Sezione longitudinale

distanziale

richiesto

Installazione manopola

Installazione manopola; in appoggio

Misure in mm

≤ 23

≤ 23

> 23

> 35

> 35

> 35

35

> 35

ø 50

35

ø 50

ø 50

70

ø 50

35

23

23

> 23

155