3

131

1400

≥ 50

> 35

134

1400

> 35

3

380

520 (A)

90

360±1

380

520 (A)

15

15

492±1 (A)

492±1 (A)

524+1 (A)

ø 50

90°

ø 60

90

360±1

384+1

ø 50

ø 60

R 3

≥ 50

R 4+1

(B)

R3

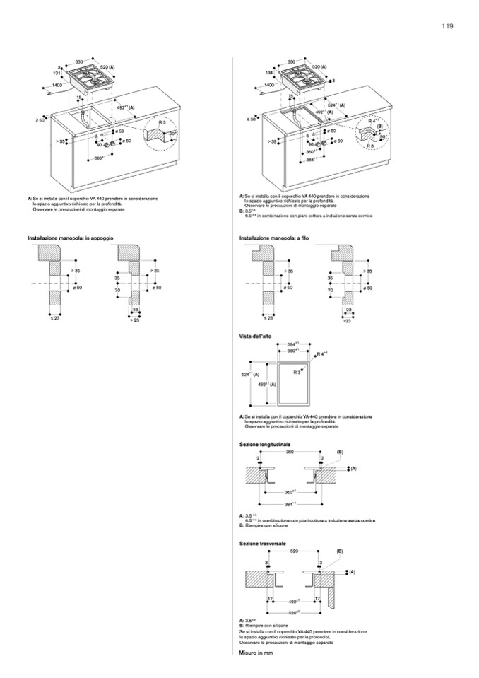
119

90°

A: Se si installa con il coperchio VA 440 prendere in considerazione

lo spazio aggiuntivo richiesto per la profondità.

Osservare le precauzioni di montaggio separate

A: Se si installa con il coperchio VA 440 prendere in considerazione

lo spazio aggiuntivo richiesto per la profondità.

Osservare le precauzioni di montaggio separate

B: 3.5

-0.5

6.5

+0.5

in combinazione con piani cottura a induzione senza cornice

Installazione manopola; in appoggio

Installazione manopola; a filo

≤ 23

23

> 23

≤ 23

Vista dall’alto

524+1 (A)

492±1 (A)

> 35

ø 50

> 35

ø 50

> 35

ø 50

384+1

360±1

R 3

> 35

70

ø 50

23

>23

35

70

35

A: Se si installa con il coperchio VA 440 prendere in considerazione

lo spazio aggiuntivo richiesto per la profondità.

Osservare le precauzioni di montaggio separate

Sezione longitudinale

380

(B)

2

2

360±1

384+1

(A)

A: 3.5

–0.5

6.5

+0.5

in combinazione con piani cottura a induzione senza cornice

B: Riempire con silicone

Sezione trasversale

520

(B)

3

3

(A)

17

492±1

17

526±1

A: 3.5

-0.5

B: Riempire con silicone

Se si installa con il coperchio VA 440 prendere in considerazione

lo spazio aggiuntivo richiesto per la profondità.

Osservare le precauzioni di montaggio separate

Misure in mm

R 4+1