2

Sistema radiante di riscaldamento

e raffrescamento "Cofloor"

1

2.a Panoramica del sistema

2

2

3

4

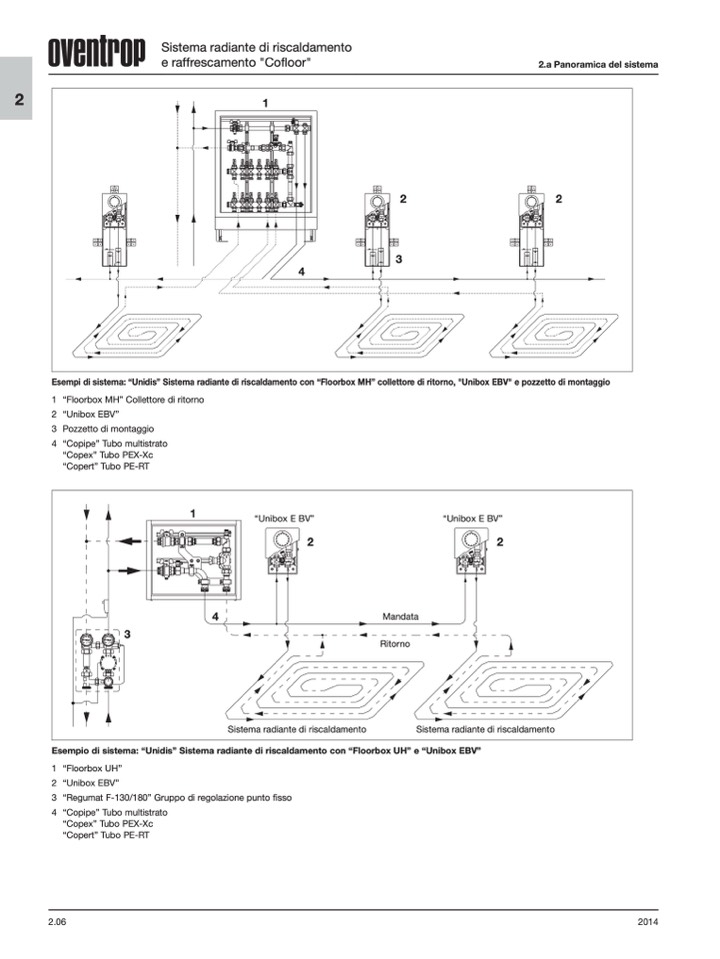
Esempi di sistema: “Unidis” Sistema radiante di riscaldamento con “Floorbox MH” collettore di ritorno, "Unibox EBV" e pozzetto di montaggio

1 “FloorboxMH”Collettorediritorno

2 “UniboxEBV”

3 Pozzettodimontaggio

4 “Copipe”Tubomultistrato

“Copex” Tubo PEX-Xc

“Copert” Tubo PE-RT

1

3

Esempio di sistema: “Unidis” Sistema radiante di riscaldamento con “Floorbox UH” e “Unibox EBV”

1 “FloorboxUH”

2 “UniboxEBV”

3 “RegumatF-130/180”Gruppodiregolazionepuntofisso

4 “Copipe”Tubomultistrato

“Copex” Tubo PEX-Xc

“Copert” Tubo PE-RT

“Unibox E BV”

“Unibox E BV”

2

2

4

Mandata

Ritorno

Sistema radiante di riscaldamento

Sistema radiante di riscaldamento

2.06

2014