K

1

4

ACCESSORI - Serie DOMESTICI

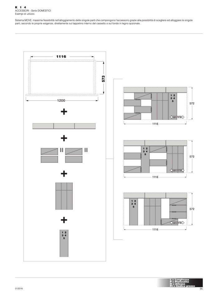
Esempi di utilizzo.

Sistema MOVE: massima flessibilità nell’alloggiamento delle singole parti che compongono l’accessorio grazie alla possibilità di scegliere ed alloggiare le singole

parti, secondo le proprie esigenze, direttamente sul tappetino interno del cassetto o sul fondo in legno opzionale.

1116

1200

+

+

+

+

12

34

5

1116

572

572

12

34

5

MOVE

12

34

5

MOVE

12

34

5

MOVE

1116

572

1116

01/2016

95

L = Lunghezza

P = Profondità

H = Altezza

Pr = Codice prezzo

5

7

3