K

1

4

PIANI

DETTAGLI TECNICI

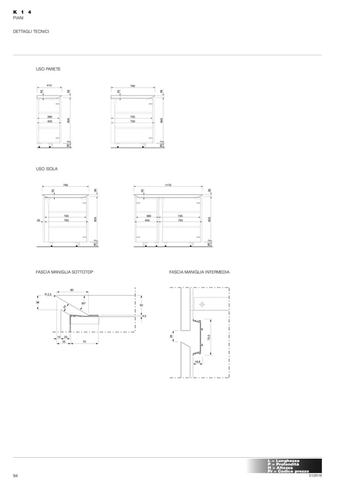
USO PARETE

415

760

725

750

380

405

USO ISOLA

25

795

1175

725

750

380

725

405 750

FASCIA MANIGLIA SOTTOTOP

FASCIA MANIGLIA INTERMEDIA

80

R 2,5

38

30°

50

4,5

10

23

35

70

18,8

94

01/2016

L = Lunghezza

P = Profondità

H = Altezza

Pr = Codice prezzo

24

2

5

7

0

,

5

8

0

2

8

0

5

3

8

8

0

2

8

0

5

3

8

5

5

5

5

8

0

2

8

0

5

3

8

8

0

2

8

0

5

3

8

5

5

5

5