PREMANT district heating pipe

Tapping technology

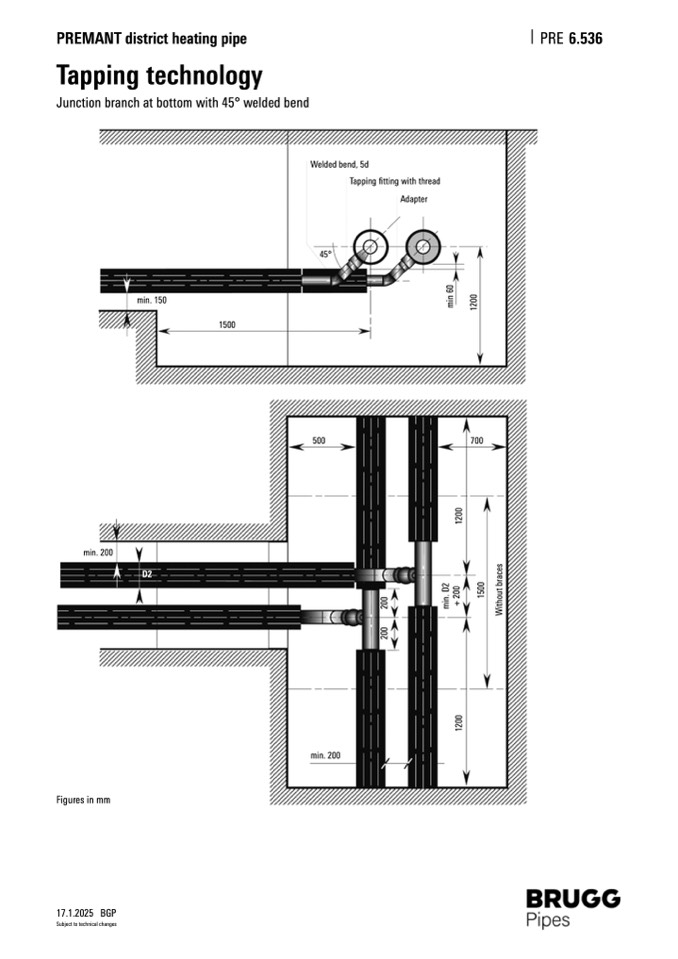
Junction branch at bottom with 45° welded bend

PRE 6.536

min. 200

Figures in mm

17.1.2025 BGP

Subject to technical changes

min. 150

D2

1500

Welded bend, 5d

Tapping fitting with thread

500

700

45°

min. 200

Adapter

1

2

0

0

2

0

0

2

0

0

m

i

n

.

D

2

+

2

0

0

1

2

0

0

1

5

0

0

W

i

t

h

o

u

t

b

r

a

c

e

s

m

i

n

6

0

1

2

0

0