SIDE BLOW

Dimensionali

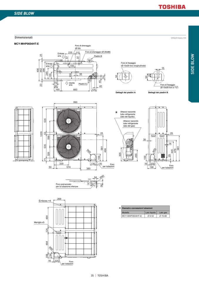
MCY-MHP0604HT-E

Unità di misura: mm

Maniglia x3

Entrata

aria

Foro di fissaggio

(Ø 15x20 foro longitudinale)

Dettagli dei piedini A

Attacco raccordo

tubo refrigerante

(lato del liquido)

Attacco raccordo

tubo refrigerante

(lato del gas)

Entrata

aria

Uscita

aria

Foro di drenaggio (Ø 20x88)

Piedini B

W

O

L

B

E

D

I

S

Foro pretranciato

per la tubazione inferiore

Foro

per tubazioni

Foro di drenaggio

(Ø 25)

Piedini A

Foro di fissaggio

(Ø 15x20 foro a “U”)

Dettagli dei piedini B

35

TOSHIBA

Foro

per tubazioni

Foro

per tubazioni

Diametro connessioni tubazioni

Modello

Lato liquido

Lato gas