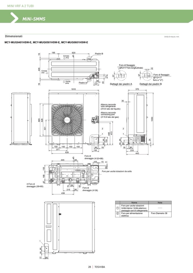
MCY-MUG0401HSW-E, MCY-MUG0501HSW-E, MCY-MUG0601HSW-E
Unità di misura: mm
7
6
4-Foro di
drenaggio (36×85)
0
7
0
6
69
Foro di
215
80
drenaggio ( Ø 38)
438
9
1
195
620
Entrata
CL
Aria
Piedini B
Foro di fissaggio
5
0
4
(
12×17 foro longitudinale)
Entrata
aria
3
7
7
3
7
3
12
9
1
4
Dettagli dei piedini A
Dettagli dei piedini B
1
5
9
5
12
64
1
0
5
150
150
371
628
150
150
C
L
83
5
9
5
5
9
4
2
5
1
5
4
9
445
Uscita
arria
Piedini A
46
107
4
Foro di fissaggio
( 12×17
foro a “U”)
1010
370
5
3
0
6
1
Foro per uscita tubazioni da sotto
8
6
1
5
0
2
80
135
18
18
80
233
Foro di
drenaggio (Ø 20×88)
105
10
9
443
28 TOSHIBA
30
2
2
1
1
8
4
3
7
4
4
Attacco raccordo
tubo refrigerante
(Ø 9.5 lato del liquido)
Attacco raccordo
connecting port
( Ø 15.9 lato del gas)
5
6
8
2
6
0
5
0
1
Nome
Foro per uscita tubazioni
1 Unità interne / Unità esterna e
passaggio cavi di collegamento
2 Foro per alimentazione
elettrica
Note
Foro Diametro 38