CONSOLE BI-FLOW

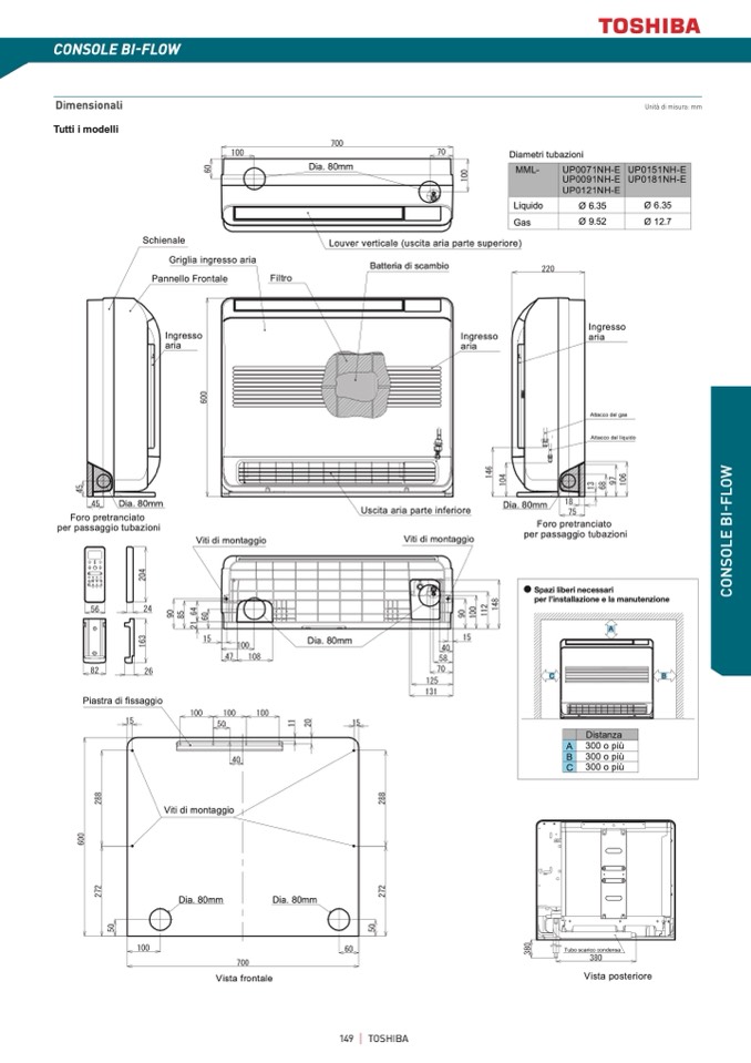
Dimensionali

Tutti i modelli

Unità di misura: mm

Foro pretranciato

per passaggio tubazioni

Foro pretranciato

per passaggio tubazioni

Dia. 80mm

Dia. 80mm

Schienale

Griglia ingresso aria

Pannello Frontale

Ingresso

aria

Filtro

Louver verticale (uscita aria parte superiore)

Batteria di scambio

Ingresso

aria

Uscita aria parte inferiore

Viti di montaggio

Ø 6.35

Ø 9.52

Ingresso

aria

Attacco del gas

Attacco del liquido

W

O

L

F

-

I

B

E

L

O

S

N

O

C

Piastra di fissaggio

Viti di montaggio

Dia. 80mm

Dia. 80mm

Viti di montaggio

Vista frontale

Tubo scarico condensa

Vista posteriore

Dia. 80mm

Diametri tubazioni

Dia. 80mm

Spazi liberi necessari

per l’installazione e la manutenzione

A

C

B

Distanza

A 300 o più

B 300 o più

C 300 o più

149

TOSHIBA

MML-

Liquido

Gas

UP0071NH-E UP0151NH-E

UP0091NH-E UP0181NH-E

UP0121NH-E

Ø 6.35

Ø 12.7