CANALIZZABILE

0

5

5

8

300 o meno

Quadro elettrico

8

1

In caso di scarico superiore

MMD-UP_BHP

CANALIZZABILE STANDARD

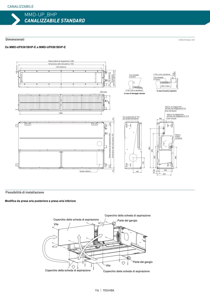
Dimensionali

Da MMD-UP0361BHP-E a MMD-UP0561BHP-E

Passo bullone di sospensione 1465

Dimensione dell’unità esterna 1400

1340 (esterno)

Unità di misura: mm

Flessibilità di installazione

Modifica da presa aria posteriore a presa aria inferiore

Coperchio della scheda di aspirazione

Vite

Coperchio della scheda di aspirazione

Quadro elettrico

Filtro aria

2

0

5

0

5

6

0

5

7

e

n

o

i

a

n

r

s

n

e

e

t

s

e

p

s

o

s

a

̀

t

i

n

i

d

e

u

l

e

d

n

o

l

u

b

e

n

o

i

s

o

s

n

e

a

P

m

i

D

0

5

8

1

1/100 o più in pendenza

In caso di drenaggio naturale

Foro pretranciato Ø 125

per canale aria esterna

In caso di scarico superiore

)

5

7

2

o

n

o

a

8

1

e

n

r

e

n

6

m

1/100 o più in pendenza

s

s

t

e

t

n

o

i

r

e

o

Tubo flessibile

di scarico

e

(

n

e

s

e

o

Tubo flessibile

0

8

1

m

i

D

a

̀

t

i

n

u

n

e

m

di scarico

4

6

l

e

d

o

0

300 o meno

5

8

Coperchio della scheda di aspirazione

Parte del gangio

Parte del gangio

Vite

Coperchio della scheda di aspirazione

116

TOSHIBA

Attacco di collegamento

del tubo del refrigerante Ø 9.5

(Lato del liquido)

Attacco di collegamento

del tubo del refrigerante Ø 15.9

(Lato del gas)

Attacco

scarico

condensa