Torna all'indice di sezione

Torna all'indice generale

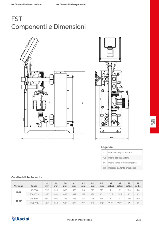
FST

Componenti e Dimensioni

Caratteristiche tecniche

55-330

650

910

365

475

95

475

95

1"

1"

1"1/4

1"1/4

Lt

Wt

www.fiorini-industries.com

223

A1

P1

Legenda

P2

A2

H

t

A1

Ingresso acqua sanitaria

A2

Uscita acqua sanitaria

P1

Uscita verso fonte energetica

P2

Ingresso da fonte energetica

Versione

Taglia

Ht

mm

Lt

mm

Wt

mm

A1

mm

A2

mm

P1

mm

P2

mm

A1

pollici

A2

pollici

P1

pollici

P2

pollici

1P+1P

55-330

650

910

365

475

95

610

515

1"

1"

1"1/4

1"1/4

500-700

1070

910

445

932

238

932

802

1"1/2

1"1/2

2"

2"

0P+1P

500-700

1070

910

500

932

238

932

802

1"1/2

1"1/2

2"

2"

P

R

E

P

.

R

A

P

I

D

I