H4 Idrante esterno in inox

rigido, PN 16

1.7

1.7.3

1.5.2

1.7.4

1.5.1

1.4

1.7.1

Indicazioni necessarie per l'ordinazione di ricambi:

Nr. ord. / DN / RD / anno di costruzione

Componente

1

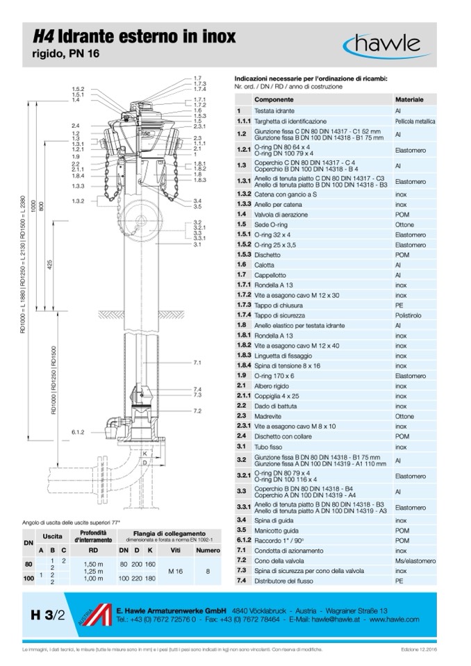
Testata idrante

1.1.1 Targhetta di identificazione

Materiale

Al

Pellicola metallica

Al

Elastomero

Al

Elastomero

inox

inox

POM

Ottone

Elastomero

Elastomero

POM

Al

Al

inox

inox

PE

Polistirolo

Al

inox

inox

inox

inox

Elastomero

inox

inox

inox

Ottone

inox

POM

inox

Al

Elastomero

Al

Elastomero

inox

POM

POM

inox

Ms/elastomero

inox

PE

2.4

2.3.1

Giunzione fissa C DN 80 DIN 14317 - C1 52 mm

Giunzione fissa B DN 100 DIN 14318 - B1 75 mm

1.2

1.3

2.3

1.3.1

1.1.1

1.2.1

2

1

.1

1.9

2.2

1.8.1

2.1.1

1.8.2

1.2

1.2.1

O-ring DN 100 79 x 4

1.8.4

1.3.3

1.8

1.8.3

1.3

Coperchio C DN 80 DIN 14317 - C 4

Coperchio B DN 100 DIN 14318 - B 4

1.3.1

Anello di tenuta piatto C DN 80 DIN 14317 - C3

Anello di tenuta piatto B DN 100 DIN 14318 - B3

1.3.2 Catena con gancio a S

1.3.3 Anello per catena

1.4 Valvola di aerazione

1.5 Sede O-ring

1.5.1 O-ring 32 x 4

1.5.2 O-ring 25 x 3,5

1.5.3 Dischetto

1.6 Calotta

1.7 Cappellotto

1.7.1 Rondella A 13

1.7.2 Vite a esagono cavo M 12 x 30

1.7.3 Tappo di chiusura

1.7.4 Tappo di sicurezza

1.8 Anello elastico per testata idrante

1.8.1 Rondella A 13

1.8.2 Vite a esagono cavo M 12 x 40

1.8.3 Linguetta di fissaggio

1.8.4 Spina di tensione 8 x 16

1.9 O-ring 170 x 6

2.1 Albero rigido

2.1.1 Coppiglia 4 x 25

2.2 Dado di battuta

2.3 Madrevite

2.3.1 Vite a esagono cavo M 8 x 10

2.4 Dischetto con collare

3.1 Tubo fisso

3.2 Giunzione fissa B DN 80 DIN 14318 - B1 75 mm

Giunzione fissa A DN 100 DIN 14319 - A1 110 mm

3.2.1

O-ring DN 80 79 x 4

O-ring DN 100 116 x 4

3.3

Coperchio B DN 80 DIN 14318 - B4

Coperchio A DN 100 DIN 14319 - A4

3.3.1

Anello di tenuta piatto B DN 80 DIN 14318 - B3

Anello di tenuta piatto A DN 100 DIN 14319 - A3

3.4 Spina di guida

3.5 Manicotto guida

6.1.2 Raccordo 1" / 90

o

7.1 Condotta di azionamento

7.2 Cono della valvola

7.3 Spina di sicurezza per cono della valvola

7.4 Distributore del flusso

1.3.2

3.4

3.5

1.7.2

1.6

1.5.3

1.5

O-ring DN 80 64 x 4

R

D

1

0

0

0

|

R

D

1

2

5

0

|

R

D

1

5

0

0

4

2

5

R

D

1

0

0

0

=

L

1

8

8

0

|

R

D

1

2

5

0

=

L

2

1

3

0

|

R

D

1

5

0

0

=

L

2

3

8

0

1

0

0

0

8

0

0

6.1.2

Angolo di uscita delle uscite superiori 77°

Profondità

d'interramento

K

D

2

100

1 2

2

1,50 m

1,25 m

1,00 m

80 200 160

M 16

100 220 180

8

Uscita

Flangia di collegamento

dimensionata e forata a norma EN 1092-1

DN

80

1 2

A

B C

RD

D

N

D

K

Viti

Numero

E. Hawle Armaturenwerke GmbH

3.2

3.2.1

3.3

3.3.1

3.1

7.1

7.4

7.3

7.2

4840 Vöcklabruck - Austria - Wagrainer Straße 13

Tel.: +43 (0) 7672 72576 0 - Fax: +43 (0) 7672 78464 - E-Mail: hawle@hawle.at - www.hawle.com

H 3/2

Le immagini, i dati tecnici, le misure (tutte le misure sono in mm) e i pesi (tutti i pesi sono indicati in kg) non sono vincolanti. Con riserva di modifiche.

Edizione 12.2016