INDICE DIMENSIONALI

DIMENSIONALI: SISTEMI VRF

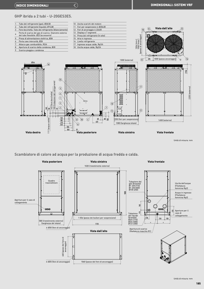
GHP ibrida a 2 tubi - U-20GES3E5.

1 Tubo del refrigerante (gas), Ø28,58

2 Tubo del refrigerante (liquido), Ø15,88

3 Foro bocchetta. Tubo del refrigerante (bilanciamento)

4

Porta di scarico dei gas di scarico. Diametro esterno

del tubo flessibile: Ø25 (accessorio)

5 Presa di alimentazione elettrica, Ø28

6 Porta cavo interunità, Ø28

7 Attacco gas combustibile, R3/4

8 Apertura di scarico della condensa, Ø20

9 Scarico pioggia e condensa

10 Uscita scarichi del motore

11 Fori per sospensione 4-Ø20x30

12 Fori di ancoraggio 4-22x30

13 Display a 7 segmenti

14 Presa del refrigerante (in alto)

15 Aria in ingresso

16 Livello refrigerante

17 Ingresso acqua calda, Rp3/4

18 Uscita acqua calda, Rp3/4

10

)

o

i

g

)

.

n

i

)

.

x

a

a

r

o

c

m

(

4

m

(

0

n

a

i

2

0

1

4

0

1

d

o

s

a

p

(

1000 (esterno)

12

12

Vista dall'alto

325

1000 (passo ancoraggio)

12

12

14

)

6

7

1

(

Aperture per il cavo di

collegamento

5

4

1

5

5

1

1

2

Tubazione

1

del liquido

(brasata)

135

Ø3/4 (710)

210

120

Ø3/4 (500)

=

=

Ø1/2 (250)

Apertura di scarico

(filettatura maschio R1)

Ø744

16

Vista destra

13

)

e

t

n

a

r

e

)

9

g

i

o

n

5

)

r

f

e

r

r

e

t

s

a

t

l

e

e

(

6

e

h

c

d

e

5

2

c

n

1

o

b

o

i

z

a

2

o

r

b

f

(

3

t

(

0

o

u

3

15

4

2

0

5

1

1

2

3

4

0

2

7

11

11

)

d

8

5

a

0

0

153

l

a

1

182

17

18

4

60

1050 (fori per sospensione)

1650 (esterno)

c

213

422

a

1080 (larghezza telaio)

u

q

243

8

326

c

a

(

353

51

1

1

Vista posteriore

Vista sinistra

Vista frontale

Scambiatore di calore ad acqua per la produzione di acqua fredda e calda.

Unità di misura: mm

Uscita dell’acqua

(Filettatura

femmina Rp2)

Acqua in ingresso

(Filettatura

femmina Rp2)

Aperture per il

cavo di

collegamento

Vista posteriore

Quadro

trasmettitore

580 (rivestimento esterno)

(larghezza del telaio)

4-Ø30 (foro di ancoraggio)

i

d

o

r

o

f

l

)

o

i

e

d

g

a

o

s

r

o

c

a

p

(

n

a

0

6

4

Vista sinistra

1020 (rivestimento esterno)

Vista frontale

4-Ø25 (foro di ancoraggio)

1060 (passo del foro di ancoraggio)

1 056 (passo dei bulloni per sospensione)

1110

Vista dall'alto

Tubazione del

gas (brasata)

Ø1 3/8 (710)

Ø1 3/8 (500)

Ø7/8 (250)

0

1

Unità di misura: mm

185