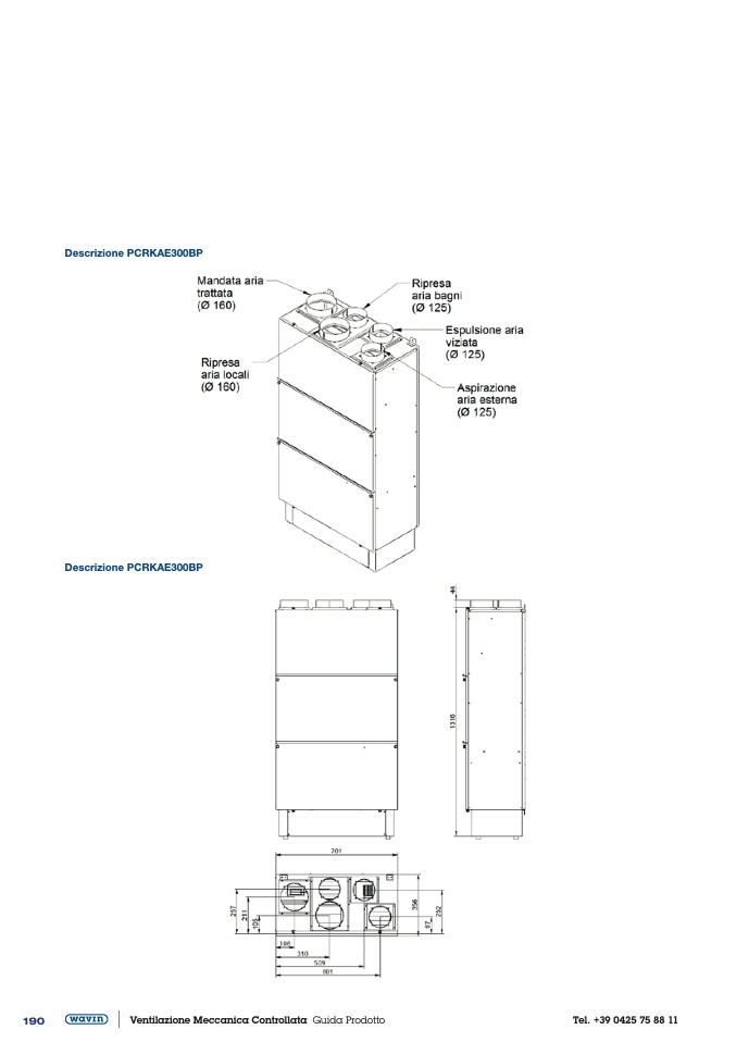
Descrizione PCRKAE300BP

Descrizione PCRKAE300BP

190

Ventilazione Meccanica Controllata Guida Prodotto

Tel. +39 0425 75 88 11