DATI TECNICI / TECHNICAL DATA

DIVINA XXL

A

430

150

400

625

433

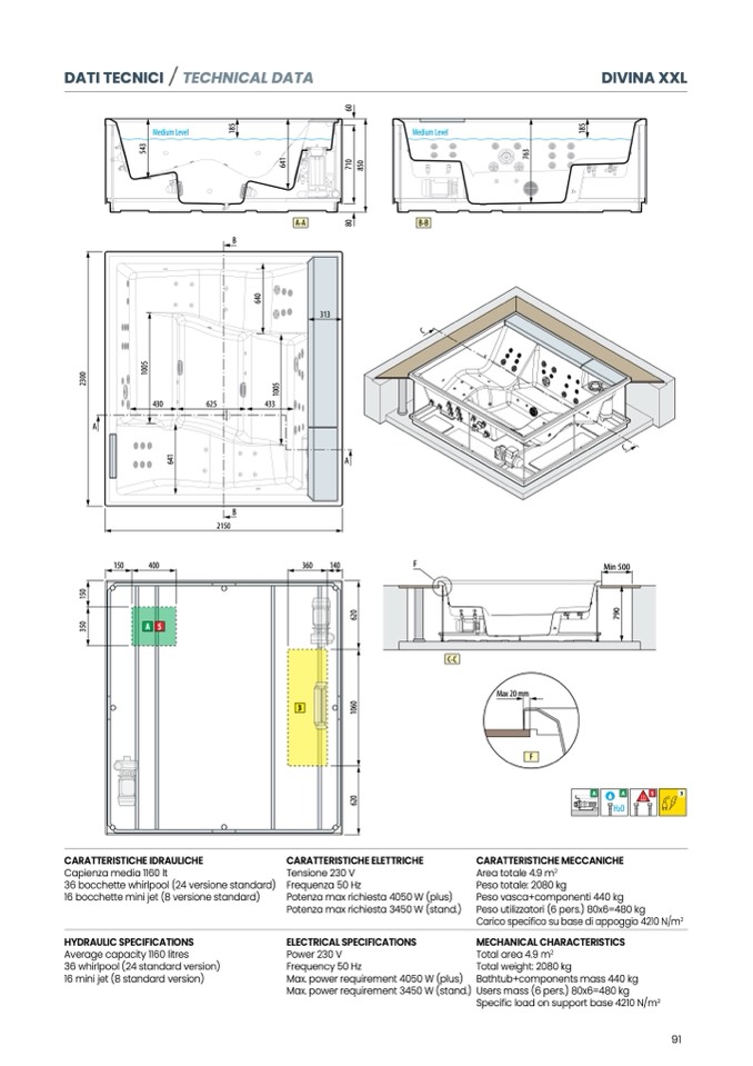
CARATTERISTICHE IDRAULICHE

CARATTERISTICHE ELETTRICHE

Tensione 230 V

Frequenza 50 Hz

Potenza max richiesta 4050 W

Potenza max richiesta 3450 W

ELECTRICAL SPECIFICATIONS

Power 230 V

Frequency 50 Hz

Max. power requirement 4050

Max. power requirement 3450

CARATTERISTICHE MECCANICHE

Area totale 4.9 m

2

Peso totale: 2080 kg

Peso vasca+componenti 440 kg

Peso utilizzatori (6 pers.) 80x6=480 kg

Carico specifico su base di appoggio 4210 N/m

2

MECHANICAL CHARACTERISTICS

Total area 4.9 m

2

Total weight: 2080 kg

Bathtub+components mass 440 kg

Users mass (6 pers.) 80x6=480 kg

Specific load on support base 4210 N/m

2

Capienza media 1160 lt

36 bocchette whirlpool (24 versione standard)

16 bocchette mini jet (8 versione standard)

HYDRAULIC SPECIFICATIONS

Average capacity 1160 litres

36 whirlpool (24 standard version)

16 mini jet (8 standard version)

(plus)

(stand.)

W (plus)

W (stand.)

B

2150

B

A-A

B-B

360

140

F

Min 500

A

C-C

Max 20 mm

F

A

A

S

3

HO

91

7

6

3

1

8

5

Medium Level

6

4

1

5

4

3

1

8

5

Medium Level

7

1

0

8

5

0

C

313

AS

3

1

0

6

0

6

2

0

6

2

0

8

0

6

0

3

5

0

1

5

0

2

3

0

0

7

9

0

6

4

1

1

0

0

5

1

0

0

5

6

4

0