45

ARBLU

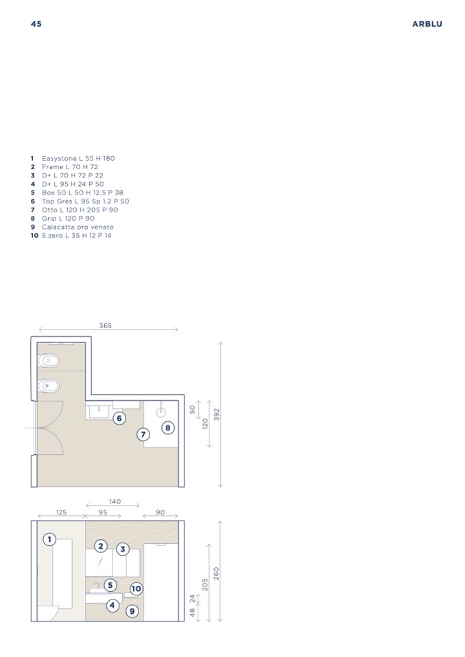
1 Easystone L 55 H 180

2 FrameL70H72

3 D+L70H72P22

4 D+L95H24P50

5 Box50L50H12.5P38

6 TopGresL95Sp1.2P50

7 OttoL120H205P90

8 GripL120P90

9 Calacatta oro venato

10 5.zeroL35H12P14

365

6

8

7

140

2

5

4

125

95

90

1

3

10

9

4

8

2

4

5

0

2

0

5

2

6

0

1

2

0

3

9

2