114

115

SCHEMI DIMENSIONALI

SCHEMI DIMENSIONALI

UNITÀ ESTERNE

STANDARD INVERTER (R410A)

UU48WR.U30 / UU49WR.U30

UNITÀ ESTERNE

STANDARD INVERTER (R410A)

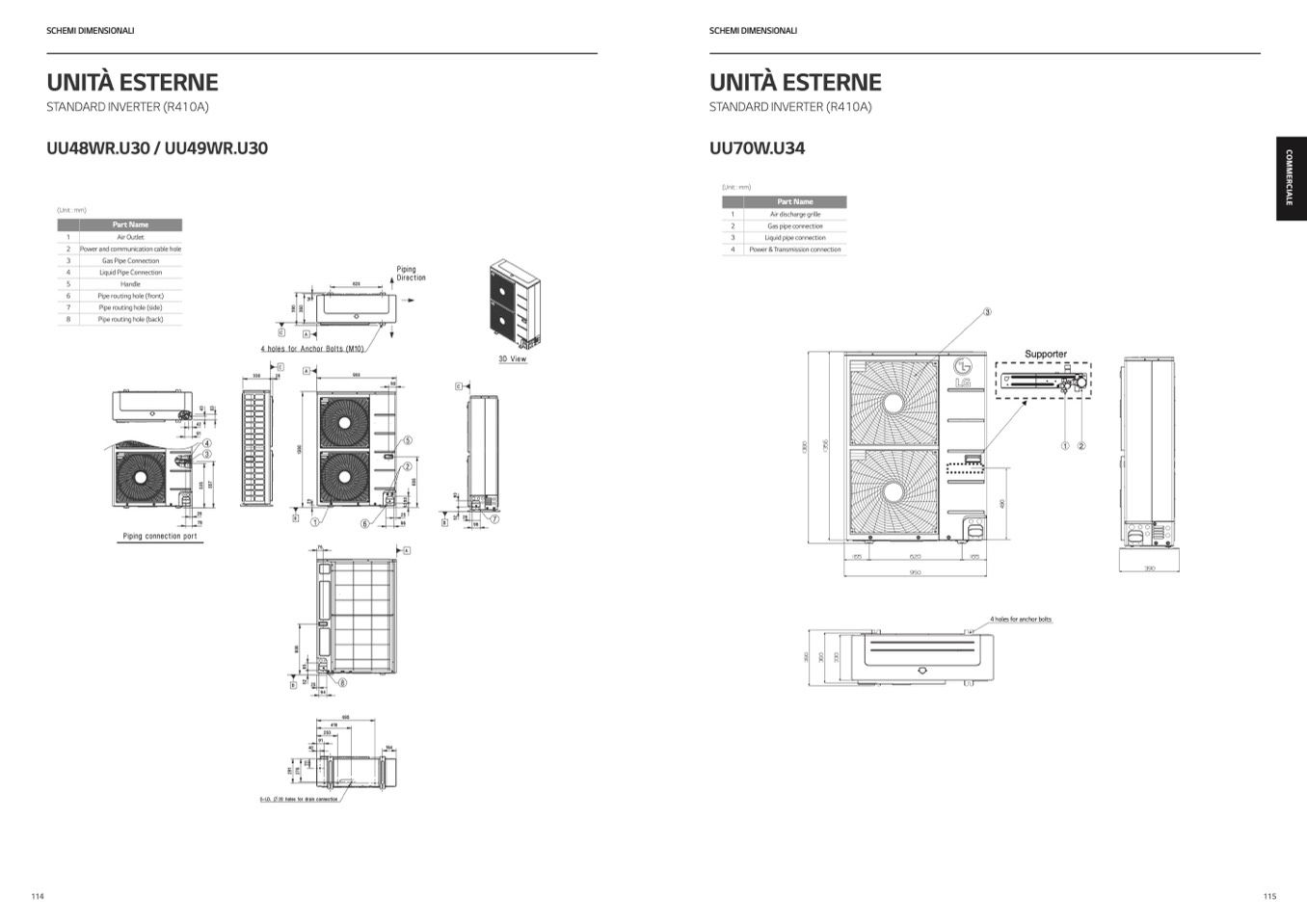
UU70W.U34

C

O

M

M

E

R

C

I

A

L

E

(Unit : mm)

1

2

3

4

Part Name

Air discharge grille

Gas pipe connection

Liquid pipe connection

Power & Transmission connection

4 holes for anchor bolts

3

1

2

3

4

5

6

7

8

Part Name

Air Outlet

Power and communication cable hole

Gas Pipe Connection

Liquid Pipe Connection

Handle

Pipe routing hole (front)

Pipe routing hole (side)

Pipe routing hole (back)

(Unit : mm)

4

9

0

4

9

0

1

1

7

0

4 holes for anchor bolts

3

Supporter

1

2

Supporter

1

2