59

SERIE

PURECLASS

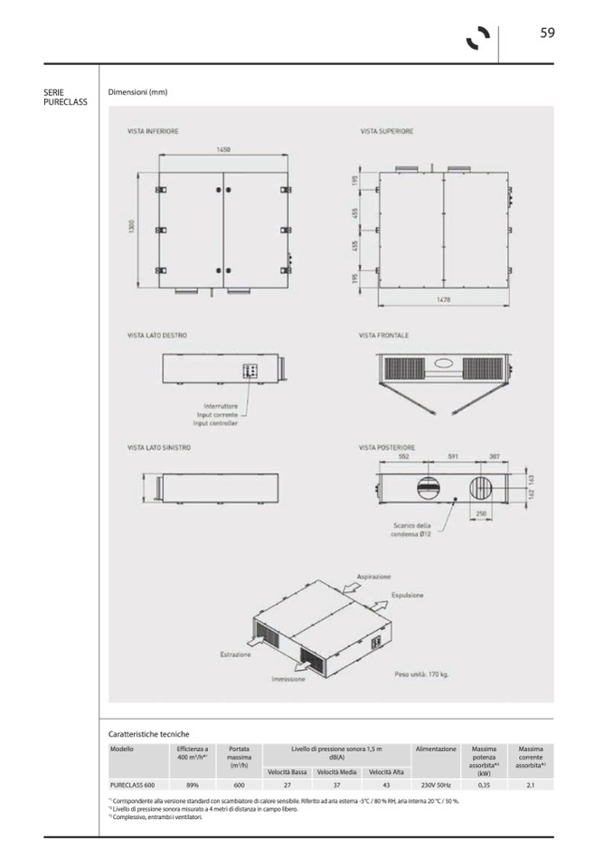
Dimensioni (mm)

Caratteristiche tecniche

*1

Corrispondente alla versione standard con scambiatore di calore sensibile. Riferito ad aria esterna -5°C / 80 % RH, aria interna 20 °C / 50 %.

*2

Livello di pressione sonora misurato a 4 metri di distanza in campo libero.

*3

Complessivo, entrambi i ventilatori.

Modello

Efficienza a

400 m

3

/h*

1

Portata

massima

(m

3

/h)

Livello di pressione sonora 1,5 m

dB(A)

Alimentazione

Massima

potenza

assorbita*

3

(kW )

Massima

corrente

assorbita*

3

Velocità Bassa

Velocità Media

Velocità Alta

PURECLASS 600

89%

600

27

37

43

230V 50Hz

0,35

2,1