IN-LINE CENTRIFUGAL PUMPS

3E

CONSTRUCTION

50Hz

Rev.A

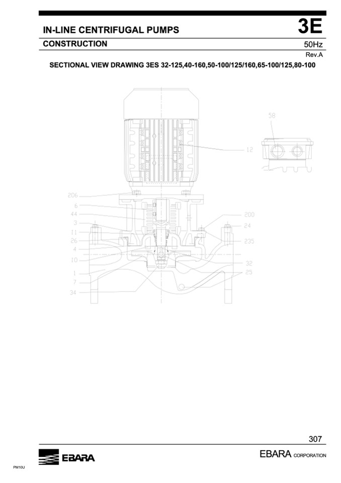
SECTIONAL VIEW DRAWING 3ES 32-125,40-160,50-100/125/160,65-100/125,80-100

307

EBARA

CORPORATION

PM10U