Schemi di installazione cascata fronte/retro

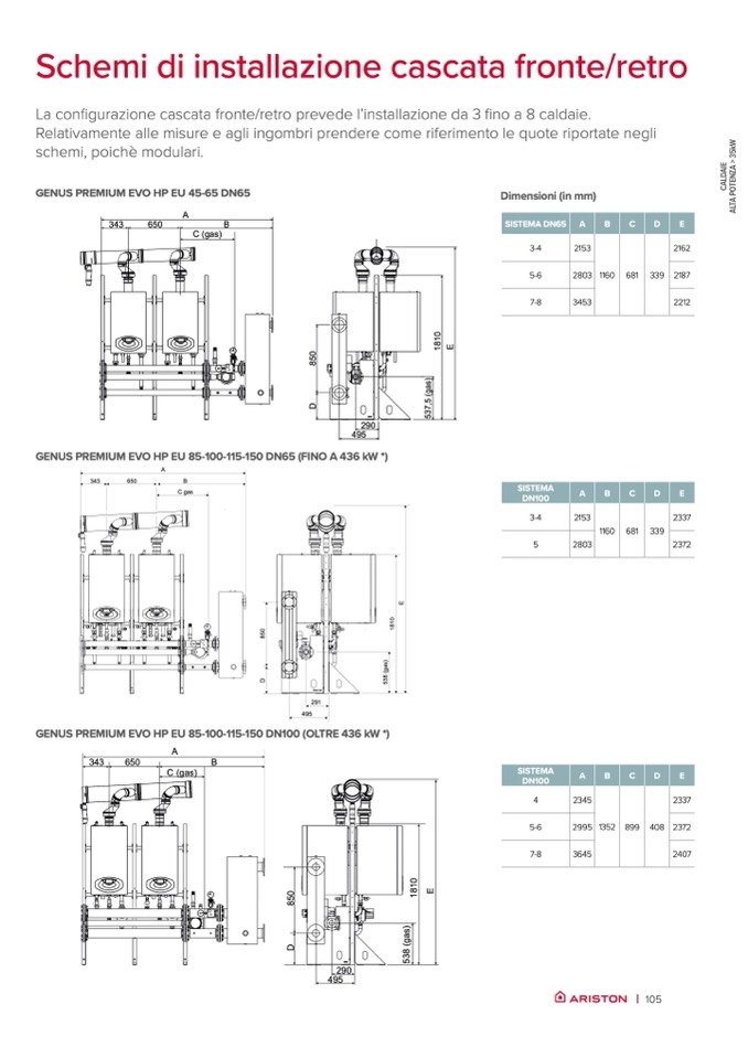
La configurazione cascata fronte/retro prevede l’installazione da 3 fino a 8 caldaie.

Relativamente alle misure e agli ingombri prendere come riferimento le quote riportate negli

schemi, poich

è modulari.

W

k

5

3

>

E

I

A

D

L

A

Z

N

E

A

C

T

O

P

A

T

L

A

GENUS PREMIUM EVO HP EU 45-65 DN65

Dimensioni (in mm)

SISTEMADN65 A

B

343

650

A

C (gas)

B

C

D

E

GENUS PREMIUM EVO HP EU 85-100-115-150 DN65 (FINO A 436 kW *)

343

650

B

C gas

SISTEMA

DN100

A

GENUS PREMIUM EVO HP EU 85-100-115-150 DN100 (OLTRE 436 kW *)

343

650

A

C (gas)

B

SISTEMA

DN100

0

1

8

1

E

0

5

8

)

s

a

g

(

5

,

D

7

3

5

290

495

0

1

8

0

5

1

8

)

s

a

g

(

8

D

3

5

291

495

0

1

8

1

E

0

5

8

)

s

a

g

(

8

3

5

D

290

495

E

3-4

2153

2162

5-6

2803 1160 681 339 2187

7-8

3453

2212

3-4

2153

5

2803

1160 681 339

2337

2372

A

B

C

D

E

A

B

C

D

E

4

2345

2337

5-6

2995 1352 899 408 2372

7-8

3645

2407

| 105