UNITÀ ESTERNA DIGITAL INVERTER - BIG DIGITA

L

RAV-GM2243AT8P-E, RAV-GM2803AT8P-

E

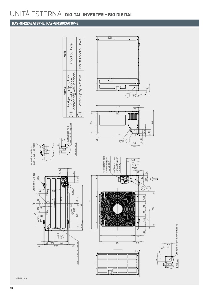
Foro di drenaggi

o

(Ø25

)

Piedino

B

Ingresso

Aria

Foro di drenaggi

o

(Ø20x88)

Ingresso

Aria

Foro pretranciato per uscit

a

tubazioni lato inferiore

Uscit

a

Piedino A

aria

Vista

Z

4-Foro di drenaggio

(36x85)

Attacco tubo refrigerante

(Ø 9,5 attacco a cartell

a

per la linea del liquido

)

Attacco tubo refrigerante

(Ø 15,9 attacco a cartella

per la linea del gas)

Nome

Not

e

Foro tubazione refrigerante

Foro ingresso cav

i

di collegamento unità

interna/esterna

Foro ingress

o

cavi di alimentazione

Ø 38 foro pretranciato

(Ø 12x17 foro longitudinale

)

(Ø 12x17 foro a “U”)

Particolare dei piedini A

Particolare dei piedini

B

(Unità: mm

)

202