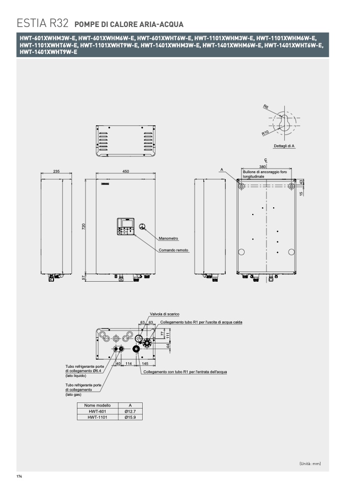
ESTIA R32 POMPE DI CALORE ARIA-ACQU

A

Dimension

i

HWT-601XWHM3W-E, HWT-601XWHM6W-E, HWT-601XWHT6W-E, HWT-1101XWHM3W-E, HWT-1101XWHM6W-E

,

HWT-1101XWHT6W-E, HWT-1101XWHT9W-E, HWT-1401XWHM3W-E, HWT-1401XWHM6W-E, HWT-1401XWHT6W-E

,

HWT-1401XWHT9W-

E

Unità idroelettrica - Unità a parete

HWT-601XWHM3W-E, HWT-601XWHT6W-

E

HWT-1101XWHM3W-E, HWT-1101XWHT6W-E, HWT-1101XWHT9W-E

R

6

R

1

0

Dettagli di

A

A

23

5

45

0

C

L

38

0

Bullone di ancoraggio for

o

longitudinal

e

1

5

4

3

7

2

0

Manometr

o

Comando remoto

5

7

6

3

Valvola di scaric

o

6

3

Collegamento tubo R1 per l'uscita di acqua cald

a

7

7

1

1

1

4

4

4

0

11

4

145

Tubo refrigerante porte

di collegamento Ø6.

4

(lato liquido

)

Tubo refrigerante port

e

di collegamento

(lato gas

)

Collegamento con tubo R1 per l'entrata dell'acqua

Nome modell

o

A

HWT-601

Ø12.7

HWT-1101

Ø15.9

(Unità: mm

)

174