Unità Esterne Multisplit Serie G3: 3M26 - 4M27 - 5M3

4

1

6

5

5

3

4

1

4

8

5

8

1

F

o

r

o

l

o

n

g

i

t

u

d

i

n

a

l

e

p

e

r

b

u

l

l

o

n

e

d

i

s

o

s

p

e

n

s

i

o

n

e

3

6

5

1

7

.

5

1

7

.

5

Piedin

o

A

2-Ø12x17 foro a “U

(per bulloni di sospensione Ø8-Ø10

)

600

150

3

6

5

4

0

2

.

5

R

6

60

0

56.

5

1

2

2

-R

1

0

Profilo estern

o

Dettagli dei piedini A

3

6

5

4

0

1

7

Profilo esterno

60

0

R

6

1

2

56.

5

Dettagli dei piedini B

5

2

2-Ø12x17 for

o

(per bulloni di sospensione Ø8-Ø10)

55

0

900

C

L

d

i

a

.

5

5

1

Piedin

o

B

B

a

r

i

c

e

n

t

r

o

4

1

1

Baricentro

32

2

Griglia di

protezione

Manigli

a

Valvol

a

del liquido

Porta

di servizio

Valvola

del gas

1

9

3

1

5

7

34.

5

Staffa di montaggio vendut

a

separatamente 12-dia. 3 emboss

380

8

3

11

1

1

6

5

Foro

pretranciato

320

30

Unità

E

Unità

D

Unità

C

Unità

B

Unità

A

8

9

0

9

4

.

2

5

2

5

2

5

2

5

2

5

2

5

2

5

2

5

2

5

2

Maniglia

1

9

1

7

1

7

4

4

3

8

2

4

327

60

178

178

178

68

51

8

6

7

5 - foro di drenaggio

longitudinale Ø20x88

4

5

375

Ø2

5

foro d

i

drenaggio

250

260

Sensore di temperatur

a

72.5

8

0

87

Baricentr

o

195

3

4

1

1

6

40

0

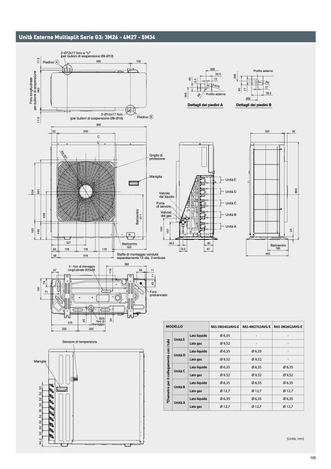
MODELLO

RAS-5M34G3AVG-E RAS-4M27G3AVG-E RAS-3M26G3AVG-

E

Lato liquido

Ø 6,35

-

-

*

D

i

a

m

e

t

r

o

p

e

r

i

l

c

o

l

l

e

g

a

m

e

n

t

o

c

o

n

i

t

u

b

i

Unità E

Lato gas

Ø 9,52

-

-

Lato liquido

Ø 6,35

Ø 6,3

5

Unità D

Lato gas

Ø 9,52

Ø 9,5

2

Lato liquido

Ø 6,35

Ø 6,35

Ø 6,3

5

Unità C

Lato gas

Ø 9,52

Ø 9,52

Ø 9,5

2

Lato liquido

Ø 6,35

Ø 6,35

Ø 6,3

5

Unità B

Lato gas

Ø 12,7

Ø 12,7

Ø 12,7

Lato liquido

Ø 6,35

Ø 6,35

Ø 6,3

5

Unità A

Lato gas

Ø 12,7

Ø 12,7

Ø 12,7

(Unità: mm

)

125