(Unità: mm)

P

a

s

s

o

d

e

l

b

u

l

l

o

n

e

d

i

s

o

s

p

e

n

s

i

o

n

e

A

D

i

m

e

n

s

i

o

n

e

u

n

i

t

à

e

s

t

e

r

n

a

B

C

(

E

s

t

e

r

n

o

)

F

o

r

o

p

e

r

v

i

t

e

p

e

r

i

l

m

o

n

t

a

g

g

i

o

d

e

l

c

o

n

d

o

t

t

o

(

N

-

M

4

)

F

i

l

t

r

o

d

e

l

l

'

a

r

i

a

S

c

a

t

o

l

a

d

e

i

c

o

n

t

r

o

l

l

i

e

l

e

t

t

r

i

c

i

f

o

r

o

d

'

u

s

c

i

t

a

(

P

e

r

l

'

a

s

p

i

r

a

z

i

o

n

e

d

e

l

l

'

a

r

i

a

)

M

o

d

e

l

l

o

t

i

p

o

12

1

1

2

5

(

E

s

t

e

r

n

o

)

P

a

s

s

o

d

e

l

b

u

l

l

o

n

e

d

i

s

o

s

p

e

n

s

i

o

n

e

3

7

0

D

i

m

e

n

s

i

o

n

e

u

n

i

t

à

e

s

t

e

r

n

a

4

5

0

D

i

m

e

n

s

i

o

n

e

u

n

i

t

à

e

s

t

e

r

n

a

2

5

o

m

e

n

o

P

a

n

n

e

l

l

o

p

e

r

l

'

e

s

t

r

a

z

i

o

n

e

d

e

i

f

i

l

i

B

u

l

l

o

n

e

d

i

s

o

s

p

e

n

s

i

o

n

e

C

o

p

e

r

t

u

r

a

p

e

r

l

'

a

c

c

e

s

s

o

P

o

r

t

a

d

i

c

o

n

n

e

s

s

i

o

n

e

p

e

r

i

l

t

u

b

o

r

e

f

r

i

g

e

r

a

n

t

e

(

L

a

t

o

l

i

q

u

i

d

o

Ф

D

)

P

o

r

t

a

d

i

c

o

n

n

e

s

s

i

o

n

e

p

e

r

i

l

t

u

b

o

d

i

s

c

a

r

i

c

o

P

o

r

t

a

d

i

c

o

n

n

e

s

s

i

o

n

e

p

e

r

i

l

t

u

b

o

r

e

f

r

i

g

e

r

a

n

t

e

(

L

a

t

o

g

a

s

Ф

E

)

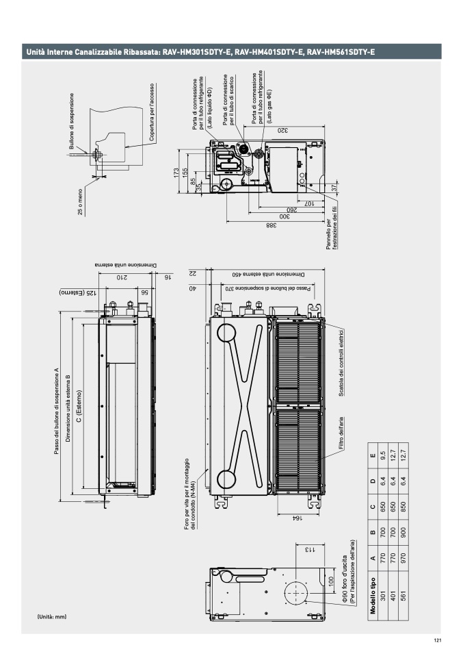
Unità Interne Canalizzabile Ribassata: RAV-HM301SDTY-E, RAV-HM401SDTY-E, RAV-HM561SDTY-E