DIMENSIONALI

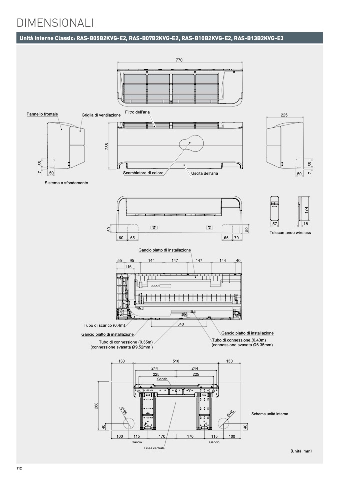
Unità Interne Classic: RAS-B05B2KVG-E2, RAS-B07B2KVG-E2, RAS-B10B2KVG-E2, RAS-B13B2KVG-E3

Pannello frontale

Griglia di ventilazione Filtro dell’ari

a

Scambiatore di calore

Uscita dell'aria

Sistema a sfondamento

1

7

4

57

1

8

Telecomando wireless

6 0

6 5

6 5

7 0

Gancio piatto di installazione

Tubo di scarico (0.4m)

Gancio piatto di installazione

Tubo di connessione (0.35m

)

(connessione svasata Ø9.52mm )

1

0

3

Gancio piatto di installazion

e

Tubo di connessione (0.40m

)

(connessione svasata Ø6.35mm

)

3

1

0

1

5

0

244

24

4

225

225

Ganci

o

Schema unità interna

11

5

100

170

17

0

Gancio

Linea centrale

115

10

0

Ganci

o

(Unità: mm)

112