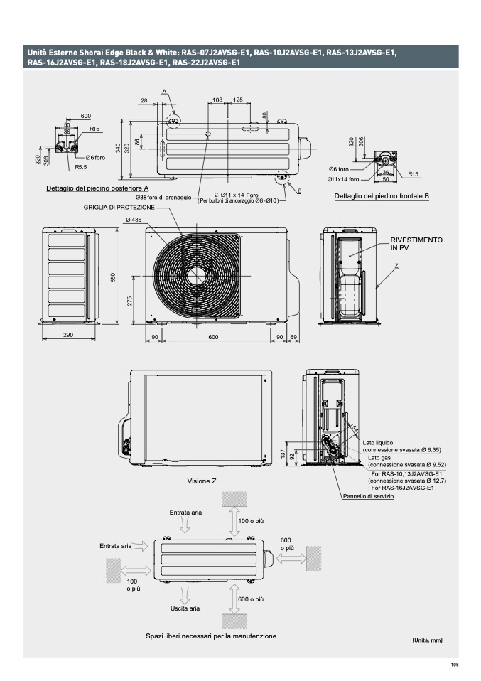
Unità Esterne Shorai Edge Black & White: RAS-07J2AVSG-E1, RAS-10J2AVSG-E1, RAS-13J2AVSG-E1

,

RAS-16J2AVSG-E1, RAS-18J2AVSG-E1, RAS-22J2AVSG-E1

A

10

1

60

0

0

6

1

6

6 foro

Dettaglio del piedino posteriore A

38foro di drenaggio

GRIGLIA DI PROTEZIONE

6

11 1 For

o

Per bulloni di ancoraggio

1

0

6 for

o

11 1 for

o

6

0

1

Dettaglio del piedino frontale

B

RIVESTIMENT

O

IN PV

0

0

0

60

0

0

6

Visione

Z

Entrata aria

100 o pi

ù

1

3

7

9

2

600

o pi

ù

5

4

Lato liquido

(connessione svasata Ø 6.35

)

Lato gas

(connessione svasata Ø 9.52)

: For RAS-10,13J2AVSG-E

1

(connessione svasata Ø 12.7)

: For RAS-16J2AVSG-E1

Pannello di servizio

Entrata aria

100

o pi

ù

600 o pi

ù

Uscita aria

Spazi liberi necessari per la manutenzion

e

(Unità: mm)

105