48 | Forni

Disegni Tecnici

Disegni tecnici Forni Serie 8

HRG675BS1, HRG635BS1, HBG635BS1, HBG635BB1, HBG635BW1

Forni | 49

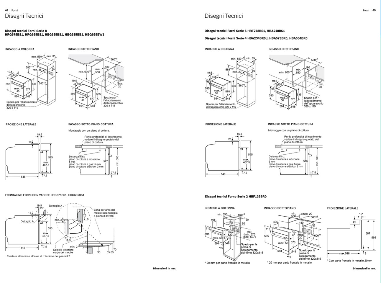
INCASSO A COLONNA

INCASSO SOTTOPIANO

INCASSO A COLONNA

INCASSO SOTTOPIANO

PROIEZIONE LATERALE

INCASSO SOTTO PIANO COTTURA

Spazio per l'allacciamento

dell'apparecchio 320 x 115

PROIEZIONE LATERALE

INCASSO SOTTO PIANO COTTURA

FRONTALINO FORNI CON VAPORE HRG675BS1, HRG635BS1

Disegni tecnici Forno Serie 2 HBF133BR0

Dimensioni in mm.

Dimensioni in mm.

Disegni Tecnici

Disegni tecnici Forni Serie 6 HRT278BS1, HRA218BS1

Disegni tecnici Forni Serie 4 HBA234BR0J, HBA573BR0, HBA534BR0

19,5

405

96

595

535 560+8

19,5

96

min. 600

405

+4

570

548

min.

20

max.

50

594

570

548

595

max.

50

594

Spazio per

l'allacciamento

dell'apparecchio

320 x 115

INCASSO A COLONNA

INCASSO SOTTOPIANO

min.

550

570

548

PROIEZIONE LATERALE

115

595

max.

520

115

595

max.

600+4

520

Spazio per la

presa di

max.548

collegamento

del forno 320x115

405

20

590

(min. 575

max. 597)

Spazio per la

presa di

collegamento

del forno 320x115

548

min. 550

max. 20

560+8

19*

587

595

max. 50 570

594

548

*19

max. 50

594

min. 550 min. 35

585+10

60

min. 20

560+8

* 20 mm per parte frontale in metallo

*19

* 20 mm per parte frontale in metallo

8

* Con parte frontale in metallo 20mm

19,5

25

595

max.

487,5

7,5

570

560+8

18

0

60

405

18

0

60

25

min.

550

535

180