286 | Frigoriferi e Congelatori

Disegni Tecnici

Disegni tecnici per Frigorifero combinato Serie 6

KIS86ADD0

Disegni tecnici per Frigoriferi combinati Serie 6

KIN86AFF0, KIS86AFE0

Disegni Tecnici

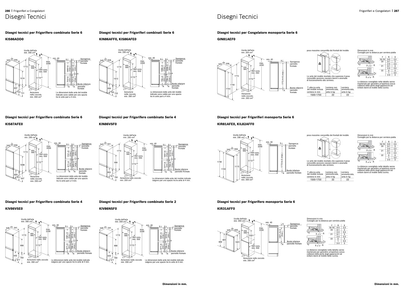
Disegni tecnici per Congelatore monoporta Serie 6

GIN81AEF0

Frigoriferi e Congelatori | 287

Dimensioni in mm

Consiglio per la distanza per cerniera piatta

F

R

X

16-19 0-3

2,5

2

20

0-1

3

F

X

R

2-3

2,5

21

0-1

3

2-3

2,5

22

0

4

2

1

3,5

F

X

R

2-3

3

Le distanze consigliate nella tabella vanno

mantenute per garantire un'apertura senza

collisioni delle porte degli apparecchi ed

evitare danni al mobile della cucina.

548

541

642

677

max.

2200

560 cons.

min. 550

1772+8

548

541

642

677

max.

2200

560 cons.

min. 550

1772+8

545

558

1021

min.

560

1021+7

max.

2200

647

Aerazione

nello zoccolo

min. 200 cm2

Le dimensioni delle ante del mobile

indicate sono valide per uno spazio

tra le ante pari a 4 mm.

Uscita dell'aria

min. 200 cm2

min.

560

Aerazione

nello zoccolo

min. 200 cm2

Uscita dell'aria

min. 200 cm2

peso massimo consentito dei frontali del mobile

T

Le ante del mobile montate che superano il peso

consentito possono causare danni e anomalie

di funzionamento alla cerniera.

1772

max.

2200

560 cons.

min. 550

+8

1772

1012

max.

2200

min.

560 cons.

min. 550

1772+8

Aerazione

nello zoccolo

min. 200 cm2

Disegni tecnici per Frigorifero combinato Serie 6

KIS87AFE0

Disegni tecnici per Frigorifero combinato Serie 4

KIN86VSF0

Disegni tecnici per Frigoriferi monoporta Serie 6

KIR81AFE0, KIL82AFF0

545

558

1772

1098

609

617

min.

560

max.

2200

560 cons.

min. 550

1772+8

545

558

1772

min.

560

F

Uscita dell'aria

min. 200 cm2

Uscita dell'aria

min. 200 cm2

peso massimo consentito dei frontali del mobile

T

Le ante del mobile montate che superano il peso

consentito possono causare danni e anomalie

di funzionamento alla cerniera.

Dimensioni in mm

Consiglio per la distanza per cerniera piatta

Disegni tecnici per Frigorifero combinato Serie 4

KIV86VSE0

Disegni tecnici per Frigorifero combinato Serie 2

KIV86NSF0

Disegni tecnici per Frigorifero monoporta Serie 6

KIR31AFF0

Uscita dell'aria

min. 200 cm2

Uscita dell'aria

min. 200 cm2

Uscita dell'aria

min. 200 cm2

min. 40

Dimensioni in mm

Consiglio per la distanza per cerniera

1772

998

760

min.

560

1772

998

760

min.

560

F

X

R

F

X

R

21

22

Aerazione nello zoccolo

min. 200 cm2

Le dimensioni delle ante del mobile indicate

valgono per uno spazio tra le ante di 4 mm.

Aerazione nello zoccolo

min. 200 cm2

Le dimensioni delle ante del mobile indicate

valgono per uno spazio tra le ante di 4 mm.

Aerazione nello zoccolo

min. 200 cm2

min. 40

S

S

4

A

Sporgenza

pannello

frontale

4

min. 40

S

S

4

Sporgenza

pannello

frontale

4

S

A

Sporgenza

pannello

frontale

Bordo inferiore

pannello frontale

F

16-19

2

20

R

0-3

0-1

2-3

0-1

2-3

0

1

2-3

pannello

frontale

Le dimensioni delle ante del mobile

indicate sono valide per uno spazio

tra le ante pari a 4 mm.

694

702

733

A

A

T: altezza anta

del mobile inclusa

cerniera in mm:

1500-1750

cerniera non

ammortizzata,

anta in kg:

22

cerniera

ammortizzata,

anta in kg:

22

min. 40

S

S

4

Sporgenza

pannello

frontale

Bordo inferiore

pannello

frontale

max.

2200

560 cons.

min. 550

1772+8

min. 40

S

Sporgenza

pannello

frontale

Bordo inferiore

pannello frontale

F

16-19

2

20

X

R

21

R

X

0-3

2,5

0-1

3

2-3

2,5

0-1

3

2-3

2,5

A

A

1749

1743

Le distanze consigliate nella tabella vanno

mantenute per garantire un'apertura senza

collisioni delle porte degli apparecchi ed

evitare danni al mobile della cucina.

A

Bordo inferiore

pannello frontale

A

A

Bordo inferiore

pannello frontale

4

0

4

F

X

R

2-3

3

545

558

min. 40

S

S

4

Sporgenza

pannello

frontale

Bordo inferiore

pannello

frontale

560

Le dimensioni delle ante del mobile

indicate sono valide per uno spazio

tra le ante pari a 4 mm.

4

6

7

7

+

A

(

m

i

n

.

)

1

0

9

1

+

S

(

m

a

x

.

)

6

1

7

+

A

(

m

i

n

.

)

1

1

5

1

+

S

(

m

a

x

.

)

7

5

6

+

A

(

m

a

x

.

)

1

0

1

2

+

S

(

m

i

n

.

)

6

4

3

+

A

(

m

a

x

.

)

1

1

2

5

+

S

(

m

i

n

.

)

6

7

7

+

A

(

m

i

n

.

)

1

0

9

1

+

S

(

m

a

x

.

)

7

0

2

+

A

(

m

i

n

.

)

1

0

6

6

+

S

(

m

a

x

.

)

7

5

6

+

A

(

m

a

x

.

)

1

0

1

2

+

S

(

m

i

n

.

)

7

2

9

+

A

(

m

a

x

.

)

1

0

3

9

+

S

(

m

i

n

.

)

1

0

2

1

+

A

+

S

(

m

a

x

.

)

1

7

7

2

A

+

S

(

m

a

x

.

)

Dimensioni in mm.

Dimensioni in mm.

999

991

2

Aerazione

nello zoccolo

min. 200 cm2

A

T: altezza anta

del mobile inclusa

cerniera in mm:

1500-1750

cerniera non

ammortizzata,

anta in kg:

22

cerniera

ammortizzata,

anta in kg:

22

piatta

X

2,5

3

2,5

3

2,5

4

3,5

3

560 cons.

min. 550

Le distanze consigliate nella tabella vanno

mantenute per garantire un'apertura senza

collisioni delle porte degli apparecchi ed

evitare danni al mobile della cucina.

22

2

1

3,5