SCHEMI DI INSTALLAZIONE PER FRIGORIFERI E CONGELATORI

KA3923IE0

387 387515515

908

76

622

(D)

908

908

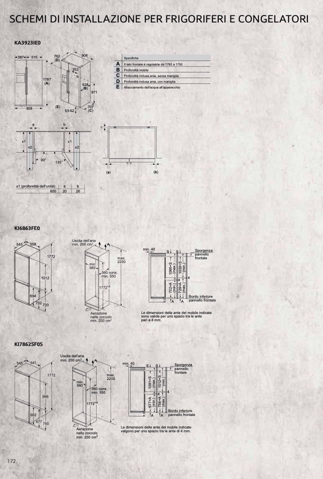
Specifiche

Specifiche

908

c

a

x1

x2

53-62

53-62

x1

x2

b

26

1787

(A)

C

Profondità inclusa anta, senza maniglia

E

Allacciamento dell'acqua all'apparecchio

1787

(A)

628

(B)

707

(C)

D

E

Profondità inclusa anta, con maniglia

Allacciamento dell'acqua all'apparecchio

90°

(C)

(a)

(D)

352

A

Il lato frontale è regolabile da 1783 a 1792

A

Il lato frontale è regolabile da 1783 a 1792

(E)

(E)b

135°

(B)

971

707

352

B

Profondità mobile

B

Profondità mobile

971

628

C

Profondità inclusa anta, senza maniglia

D

Profondità inclusa anta, con maniglia

6

7

7

+

A

(

m

i

n

.

)

1

0

9

1

+

S

(

m

a

x

.

)

7

5

6

+

A

(

m

a

x

.

)

1

0

1

2

+

S

(

m

i

n

.

)

7

0

2

+

A

(

m

i

n

.

)

1

0

6

6

+

S

(

m

a

x

.

)

7

2

9

+

A

(

m

a

x

.

)

1

0

3

9

+

S

(

m

i

n

.

)

172

x1 (profondità dell'unità)

a

600 20

KI6863FE0

545

558

1772

min. 40

S

S

Sporgenza

pannello

frontale

KI7862SF0S

Uscita dell'aria

min. 200 cm

2

min.

560

694

702

733

A

A pannello frontale

Le dimensioni delle ante del mobile indicate

sono valide per uno spazio tra le ante

pari a 4 mm.

1012

4

4

Bordo inferiore

min.

560

max.

2200

min. 550

1772+8

Uscita dell'aria

min. 200 c5m602 cons.

min. 40

Sporgenza

pannello

frontale

4

Aerazione

nello zoccolo 1772

min. 200 cm

2

Aerazione

nello zoccolo

min. 200 cm2

560 cons.

min. 550

4

max.

2200

+8

Le dimensioni delle ante del mobile

indicate sono valide con uno spazio

tra le ante pari a 4 mm.

Bordo inferiore

A

A pannello frontale

S

S

(b)

Le dimensioni delle ante del mobile indicate

valgono per uno spazio tra le ante di 4 mm.