Disegno quotato e misure degli attacchi

Descrizione di Genia Air Split

Accessori per l’impianto a pompa di calore Genia Air Split

C

A

B

B

D

440

101

G1"G1" G1"G1"

6 81 36

184

350

2

47

51

81

143

207

220

220

87

64,5

2

7

1

3

116,2

3

9

3

5

6

6

7

7

2

0

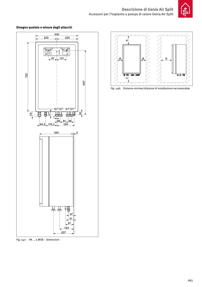
Fig. 247: HA ...-5 WSB – dimensioni

Fig. 248: Distanze minime/distanze di installazione raccomandate

263