Descrizione di Genia Air Split

Accessori per l’impianto a pompa di calore Genia Air Split

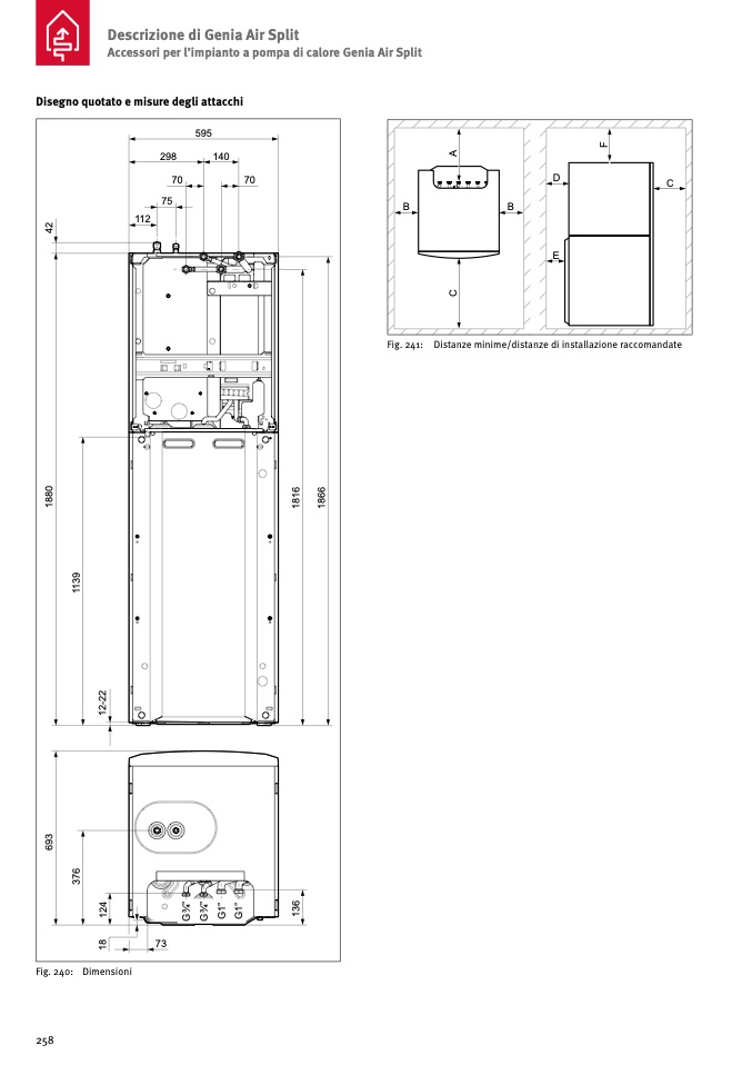
Disegno quotato e misure degli attacchi

595

F

A

2

4

B

B

C

298

70

75

112

140

70

D

E

C

0

8

6

1

8

6

8

1

1

1

9

3

1

2

-

2

1

3

9

6

6

7

3

8

1

Fig. 240:

Dimensioni

258

4

2

1

3

4

3

4

1

1

6

3

1

G

G

G

G

73

Fig. 241:

Distanze minime/distanze di installazione raccomandate