0020284510

Informazioni di prodotto per GeniaAir Tek HA ...-7.2 OS 230V B3

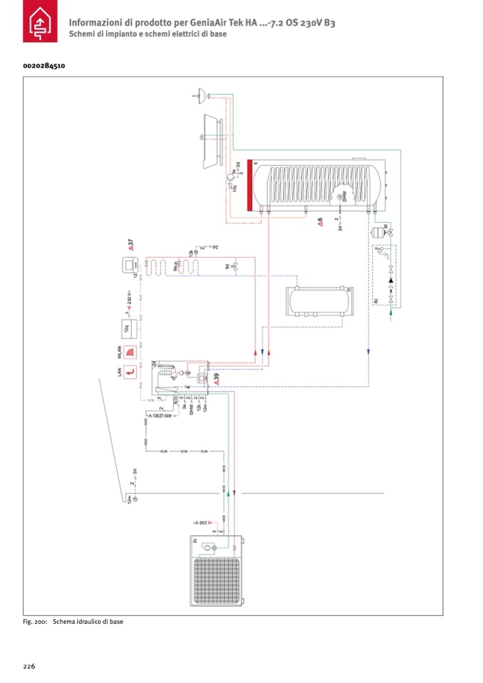
Schemi di impianto e schemi elettrici di base

D

H

W

5

7

f

2

d

2

3

0

V

~

M

O

D

M

O

D

M

O

D

4

0

0

(

2

3

0

)

V

~

B

U

S

B

U

S

2

c

3

2

3

9

M

O

D

M

O

D

M

O

D

9

d

1

2

m

2

L

A

N

W

L

A

N

B

U

S

B

U

S

1

2

q

3

2

3

0

V

~

B

U

S

3

7

2

d

1

2

B

U

S

M

O

D

M

O

D

B

U

S

B

U

S

2

d

2

2

5

(

3

)

3

e

3

D

H

W

2

1

2

k

2

1

2

m

2

9

a

2

M

1

2

k

8

c

6

2

d

2

8

f

1

0

c

3

e

2

d

3

Fig. 200: Schema idraulico di base

226