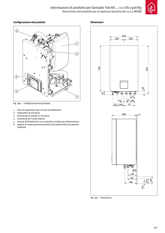
Configurazione del prodotto

Dimensioni

6

5

4

Fig. 189:

Configurazione del prodotto

0

2

7

4

7

4

2

7

5

1 Vaso di espansione per circuito riscaldamento

2 Interruttore di sicurezza

3 Scarico per la valvola di sicurezza

4 Centralina per l’unità esterna

5 Scatola dell’elettronica con controllo e scheda per alimentazione

6 Valvola di commutazione prioritaria (riscaldamento/caricamento

bollitore)

70 104

380

171

2

Informazioni di prodotto per GeniaAir Tek HA ...-7.2 OS 230V B3

Descrizione del prodotto per la stazione idraulica HA 10-7.2 WS(B)

1

2

3

71

33

3780

Fig. 190:

Dimensioni

220

440

220

62

125

135

182

X

X

X

217