Configurazione del prodotto

Dimensioni

6

1

0

5

9

8

7

6

5

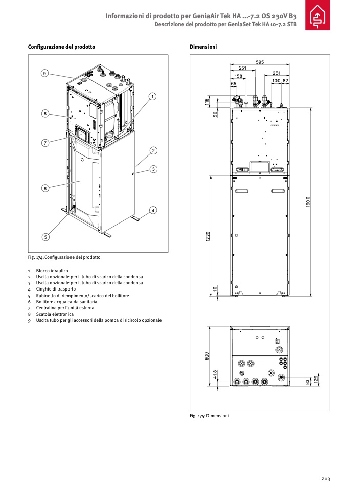
Fig. 174:Configurazione del prodotto

251

100 82

1 Blocco idraulico

2 Uscita opzionale per il tubo di scarico della condensa

3 Uscita opzionale per il tubo di scarico della condensa

4 Cinghie di trasporto

5 Rubinetto di riempimento/scarico del bollitore

6 Bollitore acqua calda sanitaria

7 Centralina per l’unità esterna

8 Scatola elettronica

9 Uscita tubo per gli accessori della pompa di ricircolo opzionale

0

2

1

0

1

Informazioni di prodotto per GeniaAir Tek HA ...-7.2 OS 230V B3

Descrizione del prodotto per GeniaSet Tek HA 10-7.2 STB

1

2

3

4

0

9

1

251

65

158

595

0

6

8

,

1

4

3

8

9

2

1

Fig. 175:Dimensioni

203