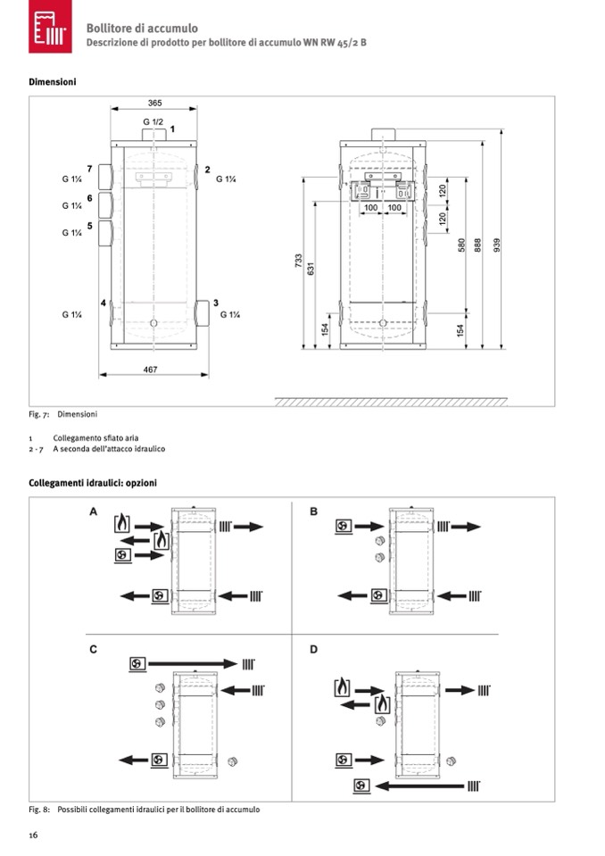
Dimensioni

Bollitore di accumulo

Descrizione di prodotto per bollitore di accumulo WN RW 45/2 B

365

8

8

8

G11⁄4

7

G11⁄4

6

G11⁄4

5

G 11⁄4

2

G11⁄4

G1/2

1

6

3

1

1

5

4

100

100

1

2

0

1

2

0

1

5

4

5

8

0

7

3

3

9

3

9

4

3

467

G 11⁄4

Fig. 7:

1

2 - 7

Dimensioni

Collegamento sfiato aria

A seconda dell’attacco idraulico

Collegamenti idraulici: opzioni

A

B

C

D

Fig. 8: Possibili collegamenti idraulici per il bollitore di accumulo

16