Informazioni sul prodotto Genia Air Mono

Descrizione della torre idraulica per GeniaSet Mono

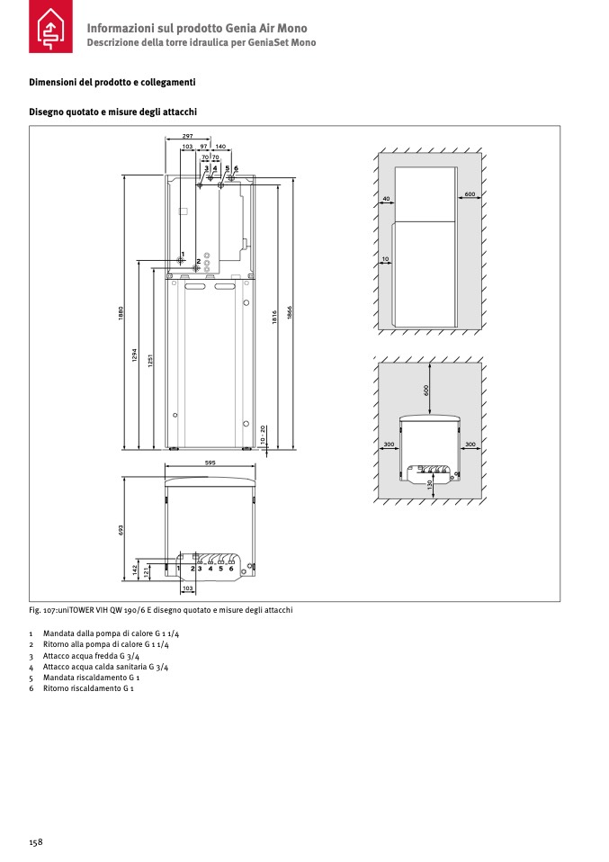
Dimensioni del prodotto e collegamenti

Disegno quotato e misure degli attacchi

297

140

70

4

56

103 97

70

3

1

2

9

4

1

0

-

2

0

1

8

1

6

1

8

6

6

40

10

600

1

2

1

2

5

1

1

3

0

6

0

0

300

300

595

3

4

5

6

103

1

2

1

1

2

1

4

2

6

9

3

1

8

8

0

Fig. 107:uniTOWER VIH QW 190/6 E disegno quotato e misure degli attacchi

1 Mandata dalla pompa di calore G 1 1/4

2 Ritorno alla pompa di calore G 1 1/4

3 Attacco acqua fredda G 3/4

4 Attacco acqua calda sanitaria G 3/4

5 Mandata riscaldamento G 1

6 Ritorno riscaldamento G 1

158