DIMENSIONI E ATTACCHI

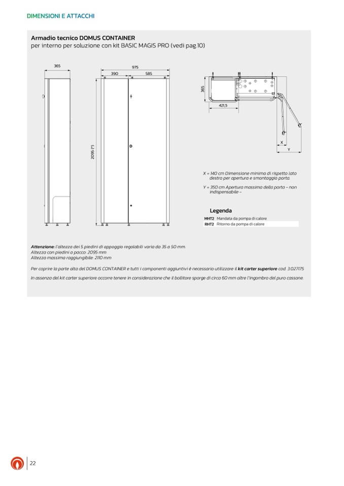
Armadio tecnico DOMUS CONTAINER

per interno per soluzione con kit BASIC MAGIS PRO (vedi pag.10)

365

365

)

*

(

)

*

(

5

9

5

9

0

2

0

2

390

585

5

6

3

5

6

3

Attenzione: l’altezza dei 5 piedini di appoggio regolabili varia da 35 a 50 mm.

Altezza con piedini a pacco: 2095 mm

Altezza massima raggiungibile: 2110 mm

975

390

585

975

Per coprire la parte alta del DOMUS CONTAINER e tutti i componenti aggiuntivi è necessario utilizzare il kit carter superiore cod. 3.027175

In assenza del kit carter superiore occorre tenere in considerazione che il bollitore sporge di circa 60 mm oltre l’ingombro del puro cassone.

3

6

5

.

5

.

65.5 50

114.5

582.5

5

.

3

5

.

3

65.5 50

114.5

3

6

3

5

.

3

582.5

AC

VCR

5

8

0

5

9

AC

VCR

G

0

.

3

9

5

8

1

G

3

9

0

5

A

F

V

VC

R

V

0

0

5

1

2

AF

V

VCR

V

3

0

2

9

5

.

5

.

6

1

9

5

.

0

7

1

0

5

.

SC

RC

RZ1 RZ2

MZ1 MZ2

G

5

.

7

6

1

3

3

RC

RC

9

0

7

0

5

.

5

.

SC

RC

RZ1 RZ2

MZ1 MZ2

1

4

6

G

RC

RC

7

3

4

3

6

5

.

5

2

0

84 65.5

60

79

60

85 60 34 55

3

.

MZ1

MZ2

5

.

6

2

0

2

84

65.5 60 79

60

85

60 34 55

MZ1

3

6

5

.

2

MZ2

RZ1

RZ2

5

.

3

6

3

6

5

.

5

.

8

RZ1

RZ2

AF SC

AC

5

.

8

5

5

.

8

6

8

5

6

AF SC

AC

43 72.5 72.5 42

43 72.5 72.5 42 230

572.5

5

.

5

.

230

0

0

60.5 69.5 69.5 79

572.5

5

.

0

4

5

.

0

4

145

92

57

4

4

7

60.5 69.5 69.5 79

RC

145

92

57

RZ1

MZ1

7

5

RC

SC

5

5

0

RZ1

MZ1

SC

5

.

7

5

AF

VCR

5

5

7

2

5

1

5

5

1

0

4

.

5

5

AF

V

VCR

1

2

0

4

1

G

RC

0

1

G

RC

0

RZ2

V

MZ2

0

1

RAZC2

MZ2

AC

22

421,5

421,5

X = 140 cm Dimensione minima di rispetto lato

destro per apertura e smontaggio porta.

Y = 350 cm Apertura massima della porta - non

indispensabile -

Legenda

MHT2 Mandata da pompa di calore

RHT2 Ritorno da pompa di calore

X

Y

X

Y