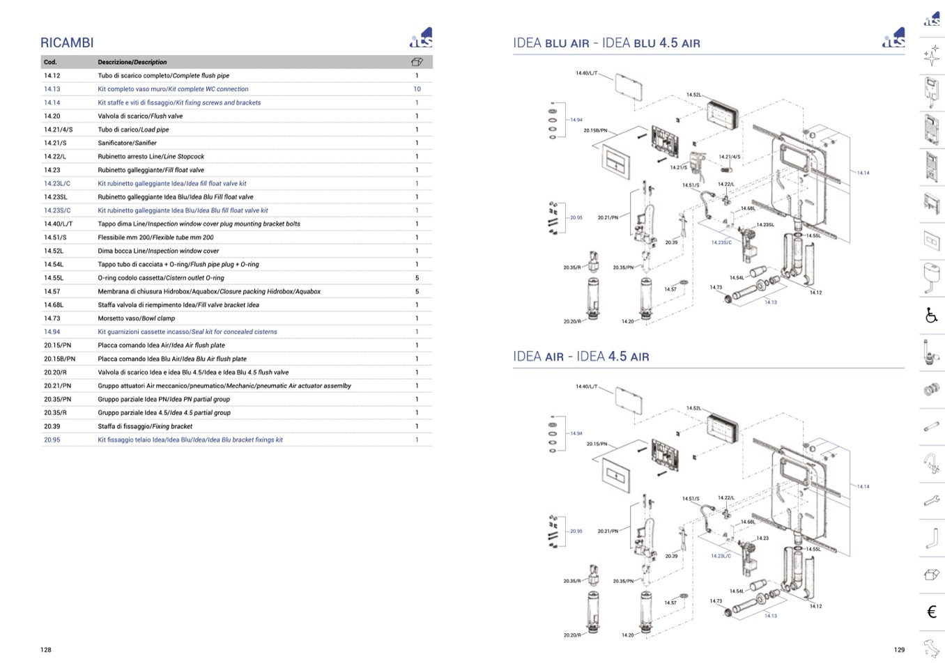
RICAMBI

Cod.

Descrizione/Description

14.12

Tubo di scarico completo/Complete flush pipe

1

14.13

Kit completo vaso muro/Kit complete WC connection

10

14.14

Kit staffe e viti di fissaggio/Kit fixing screws and brackets

1

14.20

Valvola di scarico/Flush valve

1

14.21/4/S

Tubo di carico/Load pipe

1

14.21/S

Sanificatore/Sanifier

1

14.22/L

Rubinetto arresto Line/Line Stopcock

1

14.23

Rubinetto galleggiante/Fill float valve

1

14.23L/C

Kit rubinetto galleggiante Idea/Idea fill float valve kit

1

14.23SL

Rubinetto galleggiante Idea Blu/Idea Blu Fill float valve

1

14.23S/C

Kit rubinetto galleggiante Idea Blu/Idea Blu fill float valve kit

1

14.40/L/T

Tappo dima Line/Inspection window cover plug mounting bracket bolts

1

14.51/S

Flessibile mm 200/Flexible tube mm 200

1

14.52L

Dima bocca Line/Inspection window cover

1

14.54L

Tappo tubo di cacciata + O-ring/Flush pipe plug + O-ring

1

14.55L

O-ring codolo cassetta/Cistern outlet O-ring

5

14.57

Membrana di chiusura Hidrobox/Aquabox/Closure packing Hidrobox/Aquabox

5

14.68L

Staffa valvola di riempimento Idea/Fill valve bracket Idea

1

14.73

Morsetto vaso/Bowl clamp

1

14.94

Kit guarnizioni cassette incasso/Seal kit for concealed cisterns

1

20.15/PN

Placca comando Idea Air/Idea Air flush plate

1

20.15B/PN

Placca comando Idea Blu Air/Idea Blu Air flush plate

1

20.20/R

Valvola di scarico Idea e idea Blu 4.5/Idea e Idea Blu 4.5 flush valve

1

20.21/PN

Gruppo attuatori Air meccanico/pneumatico/Mechanic/pneumatic Air actuator assemlby

1

20.35/PN

Gruppo parziale Idea PN/Idea PN partial group

1

20.35/R

Gruppo parziale Idea 4.5/Idea 4.5 partial group

1

20.39

Staffa di fissaggio/Fixing bracket

1

20.95

Kit fissaggio telaio Idea/Idea Blu/Idea/Idea Blu bracket fixings kit

1

IDEA BlU air - IDEA BlU 4.5 air

14.40/L/T

128

129

14.94

20.95

20.35/R

20.20/R

20.15B/PN

20.21/PN

20.35/PN

14.20

14.52L

14.21/S

14.51/S

14.21/4/S

14.22/L

14.23S/C

14.14

IDEA air - IDEA 4.5 air

14.40/L/T

14.94

20.15/PN

20.21/PN

20.35/PN

14.52L

14.51/S

14.14

20.95

20.35/R

14.68L

14.23

20.20/R

14.20

20.39

14.57

14.54L

14.23SL

14.13

14.55L

14.12

20.39

14.57

14.55L

14.12

14.73

14.22/L

14.23L/C

14.54L

14.73

14.68L

14.13