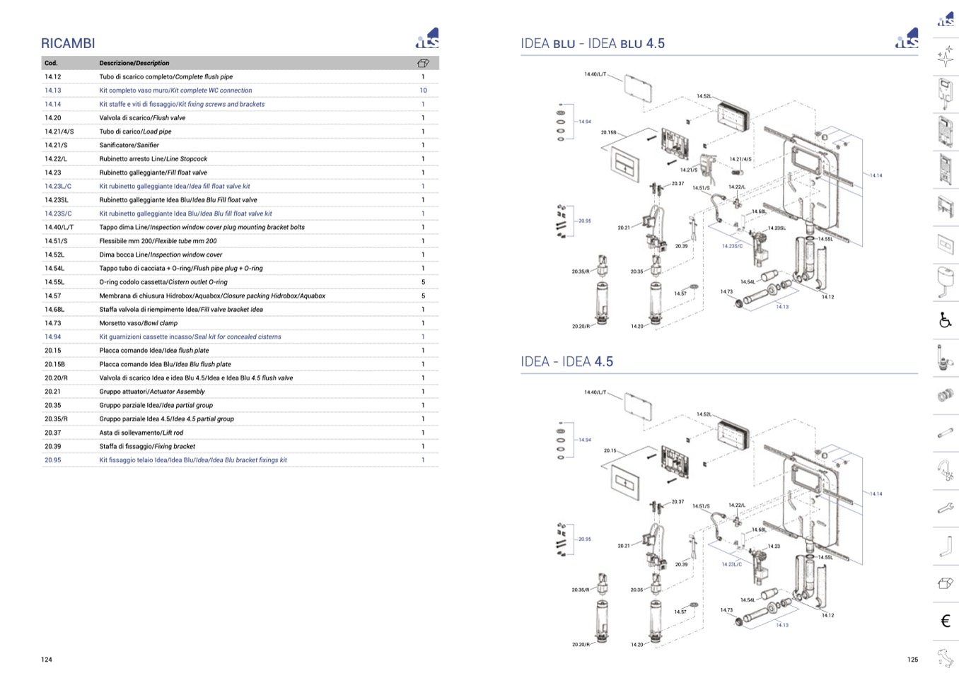
RICAMBI

Cod.

Descrizione/Description

14.12

Tubo di scarico completo/Complete flush pipe

14.13

Kit completo vaso muro/Kit complete WC connection

14.14

Kit staffe e viti di fissaggio/Kit fixing screws and brackets

14.20

Valvola di scarico/Flush valve

14.21/4/S

Tubo di carico/Load pipe

14.21/S

Sanificatore/Sanifier

14.22/L

Rubinetto arresto Line/Line Stopcock

14.23

Rubinetto galleggiante/Fill float valve

14.23L/C

Kit rubinetto galleggiante Idea/Idea fill float valve kit

14.23SL

Rubinetto galleggiante Idea Blu/Idea Blu Fill float valve

14.23S/C

Kit rubinetto galleggiante Idea Blu/Idea Blu fill float valve kit

14.40/L/T

Tappo dima Line/Inspection window cover plug mounting bracket bolts

14.51/S

Flessibile mm 200/Flexible tube mm 200

14.52L

Dima bocca Line/Inspection window cover

14.54L

Tappo tubo di cacciata + O-ring/Flush pipe plug + O-ring

14.55L

O-ring codolo cassetta/Cistern outlet O-ring

14.57

Membrana di chiusura Hidrobox/Aquabox/Closure packing Hidrobox/Aquabox

14.68L

Staffa valvola di riempimento Idea/Fill valve bracket Idea

14.73

Morsetto vaso/Bowl clamp

14.94

Kit guarnizioni cassette incasso/Seal kit for concealed cisterns

20.15

Placca comando Idea/Idea flush plate

20.15B

Placca comando Idea Blu/Idea Blu flush plate

20.20/R

Valvola di scarico Idea e idea Blu 4.5/Idea e Idea Blu 4.5 flush valve

20.21

Gruppo attuatori/Actuator Assembly

20.35

Gruppo parziale Idea/Idea partial group

20.35/R

Gruppo parziale Idea 4.5/Idea 4.5 partial group

20.37

Asta di sollevamento/Lift rod

20.39

Staffa di fissaggio/Fixing bracket

20.95

Kit fissaggio telaio Idea/Idea Blu/Idea/Idea Blu bracket fixings kit

1

10

1

1

1

1

1

1

1

1

1

1

1

1

1

5

5

1

1

1

1

1

1

1

1

1

1

1

1

IDEA BlU - IDEA BlU 4.5

14.40/L/T

124

125

14.94

20.95

20.35/R

20.20/R

IDEA - IDEA 4.5

14.40/L/T

14.52L

14.21/S

14.94

20.15

20.95

20.35/R

14.14

20.20/R

14.20

20.15B

20.21

14.23SL

14.13

20.21

14.68L

14.54L

14.73

14.23

20.35

14.20

14.54L

14.55L

14.12

20.35

14.55L

14.12

20.37

20.39

14.57

14.51/S

20.37

20.39

14.57

14.51/S

14.22/L

14.23L/C

14.52L

14.21/4/S

14.22/L

14.23S/C

14.14

14.73

14.68L

14.13