4 4

8 8

5

5

6

6

7

7

CRISTAL SLIM

P mm

1

H

BOX SLIM

P mm

640/670

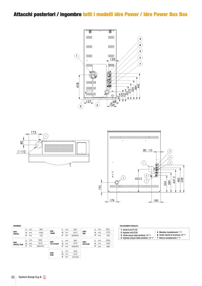
Attacchi posteriori / ingombro tutti i modelli idro Power / Idro Power Box Box

173

1

133

68

159

4

1

5

6

110

80 10

3

H mm

1210

3

110

L mm

1050

80 10

171373

1050

390/470

11

L mm

IDRO

Hmm

1210

L mm

560

mm

1210

IDRO

4

8

5

6

7

2

6

455,5 6

3

INGOMBRO

IDRO

CRISTAL

2

159

110

600

2

455,5

7

7

80 10

3

1

133

157

68

173

Lmm

560

IDRO

YOUNG

IDRO

TOP ACCIAIO

IDRO

SLIM

L mm

560

IDRO

H mm

1210

BOX

P mm

640/670

Lmm

60

Hmm

13

Pmm

78

Lmm

10

Hmm

12

Pmm

38

H mm

P mm

1050

730

4

8

5

6

7

110

P mm

370/420

4

1

5

1

5

4

1

6

3

1

2

4

1

3

7

2

2

1

2

7

0

3

2

4

4

1

8

8

0

3

8

4

4

4

3

1

9

5

1

3

7

2

2

1

3

3

4

3

8

9

4

4

7

,

5

4

4

7

,

5

4

8

2

4

8

2

5

3

8

5

3

8

2

7

0

3

8

4

3

2

4

4

4

3

3

8

4

4

4

3

1

9

5

1

9

5

3

3

4

3

3

4

3

8

9

3

8

9

4

4

7

,

5

4

8

2

5

3

8

8

0

4

1

8

8

0

6

3

1

2

4

2

7

0

3

2

4

3

8

4

4

4

3

8

0

A

IO

mm

5610210

Hmm

Lmm

IDRO

mmm

T

H

OP

P

ACC

m

IA

m

IO

mmH m1m2530801210

P mm

Pmm

380

IDRO

L mm

1050

SLIM

H mm

1210

Lmm

1050

H mm

1250

L

H

P

L

H

P

L

H

P

IDRO

L mm

600

1 Uscita fumi 100

1 Uscita fumi 100

5 Mandata riscaldamento 1” F

56 MUsacnitdaavtalrvioslcaadldi asmiceunretozz1a”1F/2” F

6 Uscita valvola di sicurezza 1/2” F

7 Ritorno riscaldamento 1” F

L mm

3

560

2

mm

560

L

mm

COLLEGAMENTI IDRAULICI

H mm

Lm

m

56

P

0

mm

YOUNG

H

mmP

mm

1210

mm

106540/670

5 Mandata riscaldamento 1” F

4 IngPres

m

smo acqu7a85fredda san3ita

Us

r

c

i

i

a

ta

1

ac

/

q

2

u

a c

F

alda san

7

itari

R

a

i

1

t

/

o

2

r

n

F

o risca6ld

U

a

sc

m

ita

e

v

n

al

t

v

o

la

1

d

i s

F

icurezza 1/2” F

CRISTAL

730

L

IDRO

L

IDRO

IDRO

Pmmmm 126140H/67

m

0

m

CRISTAL SLIM

BOX SLIM

157

COLLEGAMENTI IDRAULICI

178

180

Hm

m

1210

H

mm

1370

2 Ingresso aria 60

2 Ingresso aria 60

INGOMBRO

IDRBOOX

BOX

560

1050

H

mm

1370

COLLEGAMENTI IDRAULICI

mm

1210

P

3 Uscita acqua calda sanitaria 1/2” F

L mm

600

1 Uscita fumi 100

P mm

640/670

L mm

mm

785

mm

IDRO

640/670

P

L

mm

560

34UsIncgitraesascoqaucaqcualdfraedsadnaitsarniaita1r/i2a”1F/2” F

H mm

1370

2 Ingresso aria 60

P mm

390/470

mm

640/670

L mm

1050

Hmmmm 10510210

Pmmmm 1231700/420

mm

370/420

640/670

P mm

380

52 Carinci Group S.p.A

1210

IDRO

mm

785

IDRO

BOX

IDRO

BOX SLIM

10152050

BO10X5S0LIM

H

Lmm

560

4 Ingresso acqua fredda sanitaria 1/2” F

7 Ritorno riscaldamento 1” F

P mm

370/420

178

2

455,5

178

180

7

180