Deumidificatori

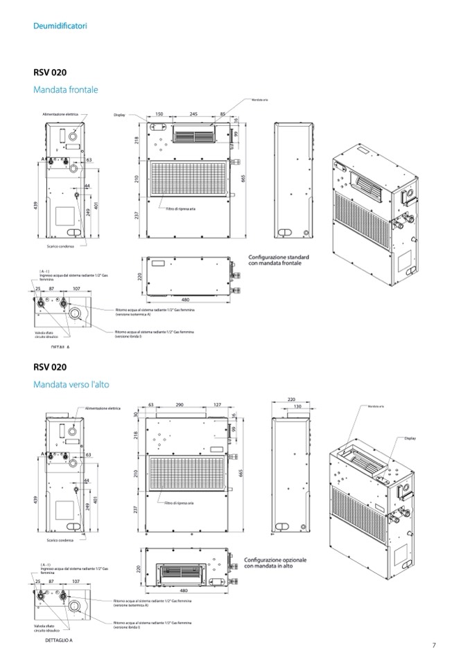
RSV 020

Mandata frontale

Alimentazione elettrica

A

63

44

Mandata aria

6

1

9

8

1

2

0

1

2

5

6

9

3

4

1

0

4

9

4

2

7

3

2

Scarico condensa

( A- I )

Ingresso acqua dal sistema radiante 1/2" Gas

femmina

25

87

107

Valvola sfiato

circuito idraulico

DETAIL A

RSV 020

Mandata verso l'alto

Alimentazione elettrica

A

63

Configurazione standard

con mandata frontale

Display

150

245

85

Filtro di ripresa aria

0

2

Ritorno acqua al sistema radiante 1/2" Gas femmina

(versione isotermica A)

Ritorno acqua al sistema radiante 1/2" Gas femmina

(versione ibrida I)

0

1

2

5

6

44

9

3

4

1

0

4

Filtro di ripresa aria

9

4

2

7

3

2

Scarico condensa

( A- I )

Ingresso acqua dal sistema radiante 1/2" Gas

femmina

0

2

25

87

107

Configurazione opzionale

con mandata in alto

Valvola sfiato

circuito idraulico

480

Ritorno acqua al sistema radiante 1/2" Gas femmina

(versione isotermica A)

Ritorno acqua al sistema radiante 1/2" Gas femmina

(versione ibrida I)

DETTAGLIO A

7

63

290

127

220

130

Mandata aria

480

0

3

6

1

9

8

1

2

Display