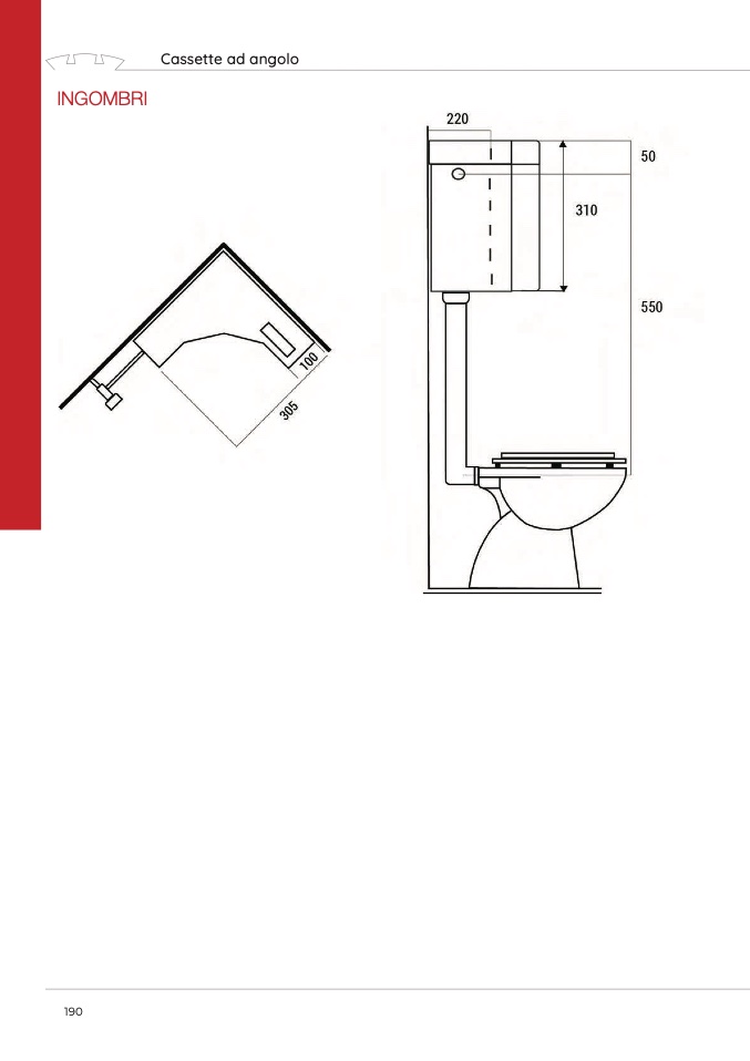
INGOMBRI

Cassette ad angolo

���