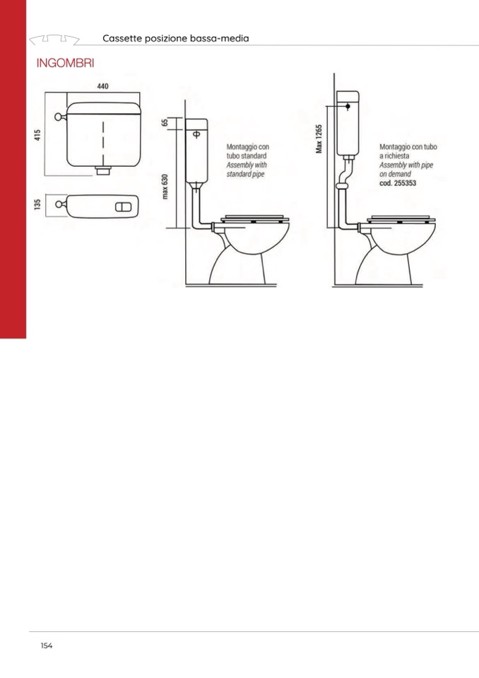
INGOMBRI

Cassette posizione bassa-media

���